Ugovorena brza cesta Zagrebačkog prstena od 50 milijuna eura, uključuje i gradnju tunela
Potpisan je ugovor za projekt Izgradnje brze ceste Kašina - Zlatar Bistrica, 1. etapa od Čvora Zlatar Bistrica do Marije Bistrice.
16:48 13 h 02.03.2026

Centar za kontrolu komaraca Osijek | foto: OBŽ
Nastavni zavod za javno zdravstvo Osječko-baranjske županije u prethodno savjetovanje uputio je projekt izgradnje Centra za kontrolo komarca – MOSQUITOLAB koji za cilj ima implementaciju prekograničnih integriranih protokola i suradnju u borbi protiv komaraca izazvanih klimatskim promjenama zaraze na hrvatsko-mađarskom graničnom području. Savjetovanje će trajati do 15. listopada, a nakon toga očekuje se raspisivanje natječaja za izvođača radova.
Procijenjena vrijednost radova iznosi 1.845.500 eura, a najveći dio ovoga kolača, nešto malo više od milijun eura potrošit će se na obrtničke radove. Za građevinske radove planira se izdvojiti 453.000 eura, a za strojarske radove 195.000 eura. Ostatak novca planirano je utrošiti na elektrotehničke radove, fotonaponske elektrane i sustav za dojavu požara.
Ovdje svakako treba reći kako je 80% sredstava za realizaciju ovoga projekta osigurano kroz financiranje iz Interreg programa prekogranične suradnje Mađarska-Hrvatska za financijsko razdoblje od 2021. do 2027. godine.

Centar za komarce | foto: screen shot EOJN
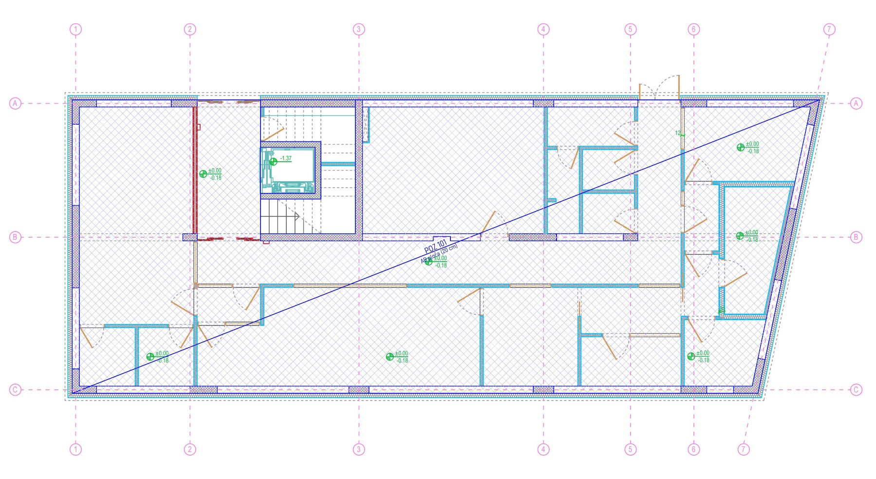
Centar za kontrolu komaraca gradit će se u Osijeku, na adresi Drinska ulica 8, odnosno na katastarskoj čestici površine 8.450.59 kvadrata. Parcela je nepravilnog je tlocrtnog oblika, a na njoj se nalazi i građevina koja će se zadržati.
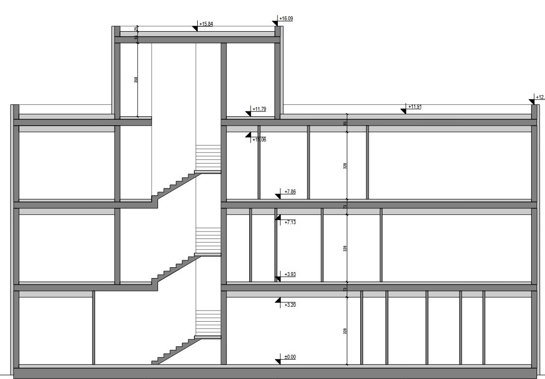
Samostojeća građevina gradit će se pak uz postojeći parking u južnom dijelu čestice na kojoj će biti osigurano i 84 parkirnih mjesta. Nova zgrada imat će četiri nadzemne etaže, odnosno prizemlje i tri kata, a gradit će se na površini od 926.92 kvadrata.
Centar će biti opremljen za primjenu inovativnih i ekološki prihvatljivih metoda kontrole, kao što je SIT metoda, odnosno tehnika sterilnih mužjaka koja će smanjiti potrebu za kemijskim tretmanima te na taj način poboljšati i samo zdravlje i okoliš ovog područja. Također bit će i mjesto razvoja inovativnih metoda kontrole komaraca, ali i mjesto u kojem će se provoditi znanstvena istraživanja i edukacije. Centar bi trebao postati i podrška lokalnim zajednicama u planiranju i provedbi mjera kontrole komaraca.

Centar za kontrolu komaraca Osijek | foto: OBŽ
Zgradi će se pristupati preko platoa duž sjeveroistočnog pročelja na kojemu su smješteni glavni i sporedni ulaz u zgradu. Ulaskom u zgradu kroz glavni ulaz pristupa se prostoru stubišta sa dizalom kojim se uspostavlja vertikalna komunikacija između svih etaža građevine.
U prizemlju zgrade biti će smješteni laboratoriji za uzgoj komaraca. Na prvom katu bit će također laboratoriji, edukacijski prostor i prateće prostorije, a na 2. katu uredski prostori, kontrolna soba, konferencijska dvorana. Dok će na 3. katu biti smješteni apartmani, soba za odmor, server soba i strojarnica.
U zgradi su predviđeni priključci na svu postojeću komunalnu infrastrukturu (elektroenergetska mreža, plin, telekomunikacije, vodoopskrba, odvodnja). Oborinske vode s prometnih površina, kao i oborinske vode s krovova odvode se na zelenu površinu vlastite parcele.

Centar za kontrolu komaraca Osijek | foto: OBŽ

Centar za komarce | foto: screen shot EOJN
Na građevini se planira izgradnja fotonaponske elektrane instalirane snage 20kW. Namjena fotonaponske elektrane je proizvodnja električne energije koja bi se koristila za napajanje glavnog razvodnog ormara. Eventualni višak proizvedene električne energije predavati će se distributeru električne energije u niskonaponsku mrežu.
Elektrana će se nalaziti na krovu građevine, a bit će podijeljena na 2 niza fotonaponskih modula s jednakim brojem modula po nizu. Ukupno će se koristiti 42 fotonaponska modula. Sustav neće raditi u otočnom pogonu.
Za izgradnju sunčane elektrane predviđena je ugradnja 42 fotonaponskih modula nazivne snage 495 W. Predviđeni su moduli tipa Longi LR5-66HPH 495Wp. Fotonaponski modul sastoji se od 132 serijske monokristalične silicijske ćelije. Nazivna snaga modula je 495 W, dimenzije modula su 2093x1134x35 mm, a težina modula je 25,3 kg.

Centar za kontrolu komaraca Osijek | foto: OBŽ
Konstrukciju objekta čine vanjski zidovi od blok opeke debljine 25 centimetara, unutarnji nosivi zidovi od blokopeke debljine 25 centimetara ukrućeni horizontalnim i vertikalnim serklažima te gips-kartonski pregradni zidovi debljina 12, 15 i 20 centimetara.
Temeljna konstrukcija biti će izvedena kao temeljna ploča debljine 40 centimetara, položena na sloj podložnog betona i tamponski sloj tucanika. Dok je međukatna konstrukcija projektirana kao armiranobetonska konstrukcija debljine 20 centimetara
Konstrukcija stropne i međukatnih ploča su projektirane kao armirano-betonska stropna konstrukcija također debljine 20 centimetara. Ploče međukatne konstrukcije oslanjaju se na zidane zidove i armirano-betonske grede i/ili nadvoje iznad otvora.
Etaže su međusobno povezane betonskim trokrakim stubištem. Debljina ploče stubišnog kraka iznosi 15 centimetara. Stubište se oslanja na armirano-betonske ploče međukatnih konstrukcija, zidane nosive zidove i armirano-betonske grede po obodu stubišne vertikale te armirano-betonske zidove jezgre dizala.

Centar za komarce | foto: screen shot EOJN

Centar za komarce | foto: screen shot EOJN
Pridružite se našoj Viber zajednici i prvi saznajte sve informacije.
Život na sjeveru: Hladni europski otok dobit će novi tunel i 24 kilometara prometnica
Na samom sjeveru Europe sprema se još jedan veliki infrastrukturni projekt. 'Niknut' će nove više od 20 kilometara ceste i tunel.
16:30 14 h 02.03.2026
Istra konačno u mreži hrvatskih autocesta: Radovi bi trebali završiti do kraja godine
U Istri se strpljivo čeka završetak dogradnje Istarskog ipsilona i spoj na autocestu bez stajanja. To je najveći infrastrukturni projekt u županiji.
14:08 16 h 02.03.2026
Ugovorena brza cesta Zagrebačkog prstena od 50 milijuna eura, uključuje i gradnju tunela
Potpisan je ugovor za projekt Izgradnje brze ceste Kašina - Zlatar Bistrica, 1. etapa od Čvora Zlatar Bistrica do Marije Bistrice.
16:48 13 h 02.03.2026
Olakšanje za pješake: Na jednoj od najprometnijih cesta u Splitu kreće gradnja nathodnika
U Kaštel Lukšiću Hrvatske ceste grade pješački nadvožnjak preko državne ceste D8, vrijedan 700.000 eura. Posao je dobila velika austrijska tvrtka.
14:16 16 h 02.03.2026