Lithium SuperPack NG baterija (LSP NG)
Na bateriju LSP NG mogu se spojiti i najzahtjevnija trošila na plovilu poput bočnih potisnika i sidrenog vitla. To otvara nove perspektive primjene.
16:00 6 d 30.03.2026
Športski centar Gripe | Foto: EOJN
Legendarna velika dvorana na splitskim Gripama kreće u obnovu. Traži se izvođač za milijunski zahvat.
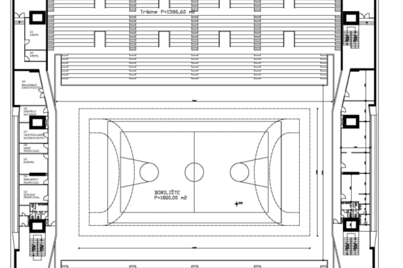
Jedan od najprepoznatljivijih sportskih i društvenih prostora u Splitu, Športski centar Gripe, uskoro kreće u veliku rekonstrukciju. Grad Split raspisao je natječaj vrijedan 1.450.000 eura za projekt obnove gledališta velike dvorane, čime započinje novo poglavlje u životu ovog kultnog kompleksa koji već desetljećima okuplja sportaše, navijače i ljubitelje glazbe.
Športski centar Gripe izgrađen je za potrebe Mediteranskih igara, a otvoren je 1979. godine prema projektu arhitekata Živorada Jankovića i Slavena Rožića. Kompleks se sastoji od velike i male dvorane te više manjih prostora za različite sportove, a velika dvorana funkcionalno je povezana s trgovačkim centrom i dvoetažnom garažom.
Objekt velike dvorane organiziran je kroz tri osnovne funkcionalne cjeline - samu dvoranu s pratećim prostorima, pomoćne dvorane te skladišni i sklonišni dio. Prostor se vertikalno razvija kroz četiri etaže, od razine borilišta (+40), preko glavnog ulaza (+44), galerije velike tribine (+48), do press centra na razini +52. Trenutačni kapacitet gledališta iznosi 3896 sjedala, raspoređenih na veliku i malu tribinu.
Projekt obnove usmjeren je isključivo na gledališni dio velike dvorane, bez zahvata na sportskom terenu i pratećim sportskim sadržajima. U tehničkom smislu, riječ je o sveobuhvatnoj sanaciji i modernizaciji postojećih betonskih tribina te kompletnoj obnovi sustava sjedenja.
- Postojeće betonske tribine bit će temeljito očišćene, a njihova površina sanirana novim zaštitnim i sigurnosnim slojevima, osobito na stepenišnim dijelovima gdje je habanje najizraženije. Posebna pozornost posvetit će se protukliznim svojstvima gazišta, čime se povećava sigurnost kretanja gledatelja. Planirana je i zamjena dotrajalih metalnih podnih oznaka te obnova ili zamjena zaštitnih ograda, sukladno važećim sigurnosnim standardima. Ventilacijski otvori na tribinama dobit će nove rešetke, čime će se poboljšati funkcionalnost sustava ventilacije i estetski dojam prostora, opisano je u projektnoj dokumentaciji.
Jedan od ključnih segmenata projekta odnosi se na obnovu sjedalica i njihove potkonstrukcije. Predviđena je izrada novih sjedalica identičnih postojećem oblikovnom rješenju, ali s poboljšanim tehničkim karakteristikama, posebice u pogledu otpornosti na požar. Time se zadržava vizualni identitet dvorane, uz istodobno podizanje razine sigurnosti na suvremene standarde.
Postojeće drvene sjedalice bit će demontirane, servisirane i ponovno ugrađene uz primjenu novih zaštitnih premaza koji povećavaju njihovu otpornost na požar i habanje. Obnova uključuje i bojanje te postavljanje novih, jasno vidljivih oznaka brojeva sjedišta radi bolje organizacije i orijentacije gledatelja. Tapecirane drvene sjedalice proći će proces servisiranja, pri čemu će se zamijeniti dotrajale obloge, a konstrukcije dodatno učvrstiti.
Metalne konstrukcije koje nose drvena i tapecirana sjedala bit će pregledane, po potrebi sanirane i zaštićene od korozije. U 'presidental box' dijelu predviđen je detaljan pregled i obnova metalne konstrukcije te obloge podnih platformi, kako bi se osigurala dugoročna stabilnost i reprezentativnost tog prostora. VIP zona dobit će nove sjedalice, prilagođene višem standardu udobnosti.
Projektom je predviđeno i unapređenje mjesta za osobe smanjene pokretljivosti, uz prilagodbu dijela gledališta suvremenim standardima pristupačnosti. Time se velika dvorana dodatno otvara svim kategorijama korisnika, što je važan iskorak u kontekstu javne infrastrukture.
Iako se na prvi pogled čini da je riječ o obnovi „samo“ gledališta, zahvat obuhvaća ključne konstruktivne i sigurnosne elemente prostora. Kombinacijom sanacije betonskih tribina, modernizacije sjedalica i unapređenja sigurnosnih detalja, velika dvorana Gripe dobit će funkcionalniji i kvalitetniji prostor nego dosad.
Lithium SuperPack NG baterija (LSP NG)
Na bateriju LSP NG mogu se spojiti i najzahtjevnija trošila na plovilu poput bočnih potisnika i sidrenog vitla. To otvara nove perspektive primjene.
16:00 6 d 30.03.2026
Projekt predviđa produljenje ključnih kolosijeka kako bi se omogućio prihvat vlakova duljine do 500 metara, što je važan korak u modernizaciji pruge.
12:53 5 h 05.04.2026
Pregled projekata najvećih hrvatskih stadiona: Pogled u budućnost Poljuda, Maksimira i Kantride
Realizacija triju najvećih nogometnih projekata u Hrvatskoj nikad nije bila bliža, no još je ostalo puno koraka.
12:37 1 d 04.04.2026
Spremni na sve: Uz granicu na istoku gradi se nova zgrada hitne, imat će 740 kvadrata i dvije etaže
Građevina će biti smještena unutar građevinskog područja naselja Županja, a natječaj za izvođača radova očekuje se iza Uskrsa.
12:34 1 d 04.04.2026
Od čitatelja iz Osijeka dobili smo fotografije kolničke površine novog kružnog toka na ulazu u grad koje ukazuju na loše odrađen posao.
13:33 2 d 03.04.2026
Talijanski grad odao počast arhitektici koja je oblikovala poznati kvart, dobila vlastitu ulicu
Grad Milano odao je počast jednoj od najutjecajnijih arhitektica suvremenog doba imenovanjem nove ulice po Zahi Hadid, deset godina nakon njene smrti.
13:31 2 d 03.04.2026
Zagreb otvara novo gradilište uz petlju: 'Horor' pothodnik ide u milijunsku rekonstrukciju
U Zagrebu više od 15 posto stanovnika živi s invaliditetom. Upravo zato Grad kontinuirano ulaže u unapređenje mobilnosti.
13:31 2 d 03.04.2026
U pitoresknoj općini u srcu Hrvatske, građevinski div za 8 milijuna eura uređuje top hotel
U maloj općini u srcu Hrvatske, poznata domaća tvrtka uređuje hotel s četiri zvjezdice. Posao je ugovoren za 8 milijuna eura.
10:18 2 d 03.04.2026