O hlađenju treba razmišljati prije prvog toplinskog vala. Danas su dostupne inovacije koje troše manje, filtriraju zrak i prilagođavaju se prostoru.
10:30 12 d 13.04.2026

Biskupski dvor Dubrovnik, prenamjena | foto: Grad Dubrovnik
Nastavno na ugovor sklopljen s Dubrovačkom biskupijom, u sklopu projekta prenamjene Biskupskog dvora potrebno je provesti radove temeljite rekonstrukcije objekta, a za koje je Grad Dubrovnik nedavno raspisao natječaj. Oni će obuhvatiti statičku sanaciju, obnovu krova, izradu fasade, ugradnju lifta, novu organizaciju unutarnjeg prostora, priključak objekta na javnu kanalizaciju, nove instalacije, novi sustav grijanja i hlađenja, ugradnju sustava protupožarne zaštite.
Nakon rekonstrukcije i prenamjene prostora te opremanja, vrtić će služiti za smještaj više od 120 djece. Bit će moderno opremljen, te u skladu s aktualnim standardima za predškolsko obrazovanje.
Rok za dostavu ponuda je 19. veljače, a procijenjena vrijednost nabave za radove (bez PDV-a) iznosi 2.127.182 eura. Iz Grada Dubrovnika ističu kako se izvođač ugovorom obvezuje završiti s izvođenjem radova najkasnije u roku od 14 mjeseci od dana uvođenja u posao. Što znači da bi djeca u Biskupski dvor mogla ‘useliti’ početkom 2027./2028. pedagoške godine.
Zgrada Biskupske kuće u Gospinom polju izgrađena je nakon potresa 1979. godine, kada je oštećena Biskupska palača u povijesnoj gradskoj jezgri Dubrovnika, te je služila za potrebe biskupskog smještaja. Građevina se sastoji od suterena, prizemlja i dva kata, pri čemu je etaža drugog kata izvedena kao potkrovlje. Ispod manjeg dijela suterena nalazi se i podrumska etaža visine koja služi kao tehnički prostor.
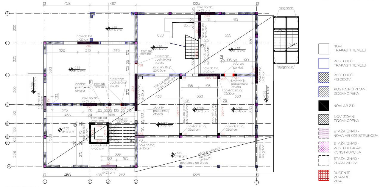
Tlocrtni gabariti građevine iznose približno 15,95 x 21,95 metara. Nosivu vertikalnu konstrukciju čine zidani zidovi debljine 25 centimetara, omeđeni armiranobetonskim serklažima, dok su horizontalni nosivi elementi izvedeni kao monolitne armiranobetonske ploče debljine 12 centimetara.

Biskupski dvor Dubrovnik, prenamjena | foto: Grad Dubrovnik
Za potrebe izrade glavnog projekta provedeni su istražni radovi, uključujući uzimanje uzoraka armiranobetonskih ploča i ispitivanje sastava zidanih zidova. Rezultati ispitivanja pokazali su tlačnu čvrstoću ploča u rasponu od 28 do 31 MPa, čime je potvrđena zadovoljavajuća kvaliteta postojećih materijala.
Vizualnim pregledom nisu utvrđene deformacije niti pukotine u nosivim zidovima ili temeljnoj konstrukciji. No, ističe se kako je na sjeverozapadnom kutu zgrade, u razini drugog kata, prethodno ugrađeno čelično ojačanje u obliku dijagonalne potpore balkona, a zbog pukotine nastale uslijed udara stabla bora tijekom olujnog nevremena. Istražnim radovima utvrđeno je da će se pukotina sanirati injektiranjem, sukladno izvedbenom projektu i troškovniku radova.

Biskupski dvor Dubrovnik, prenamjena | foto: Grad Dubrovnik
Rekonstrukcijom je predviđeno uklanjanje postojećih pregradnih zidova unutar etaža kako bi se izrazito usitnjeni prostori prilagodili potrebama dječjeg vrtića i jaslica. Time se omogućuje formiranje većih, funkcionalnih i preglednih prostora primjerenih boravku djece. Osim ugradnje dizala, nisu planirani veći zahvati na nosivoj konstrukciji, izuzev ojačanja predviđenih glavnim projektom.
U suterenskoj etaži planirano je uređenje kuhinje i praonice te garderoba i sanitarnih čvorova za zaposlenike. U sjeverozapadnom dijelu suterena smjestit će se jedna odgojno-obrazovna skupina za stariji vrtićki uzrast s pripadajućim pomoćnim prostorima. Na zapadnom pročelju postojeći prozorski otvori prenamijenit će se u vrata, čime će se omogućiti izlaz na djelomično natkrivenu terasu. Takvo rješenje osigurava izravnu vezu unutarnjih prostora s vanjskim boravkom i u skladu je s pedagoškim standardima za predškolski odgoj.

Biskupski dvor Dubrovnik, prenamjena | foto: Grad Dubrovnik
Planiranim zahvatom predviđa se zadržavanje cjelokupne postojeće nosive konstrukcije građevine, uz provedbu nužnih konstruktivnih ojačanja sukladno glavnom i izvedbenom projektu konstrukcije. Ojačanja međukatnih armiranobetonskih ploča izvodit će se linijskim štemanjem ploča u zonama ugradnje novih elemenata, pri čemu se zadržava postojeća armatura.
Novi konstruktivni elementi ugrađuju se s dodatnom armaturom, prema statičkom proračunu. Svi detalji ovih zahvata bit će precizno razrađeni u izvedbenom projektu konstrukcije. U sklopu prenamjene planirano je i otvaranje novih otvora za vrata u postojećim zidanim zidovima. Svaki novi otvor bit će uokviren armiranobetonskim okvirom, čime se osigurava stabilnost i nosivost zidane konstrukcije. Projektirana rješenja u potpunosti su usklađena s Tehničkim propisom za građevinske konstrukcije te važećim normama.

Biskupski dvor Dubrovnik, prenamjena | foto: Grad Dubrovnik
S obzirom na buduću javnu i odgojno-obrazovnu namjenu građevine, projektom je posebna pažnja posvećena protupožarnoj zaštiti. Na jugozapadnom dijelu objekta planirana je ugradnja vanjskog čeličnog požarnog stubišta koje će služiti kao dodatni evakuacijski put. Stubište će se izvesti od čeličnih stupova s rešetkastim čeličnim gazištima.
Na istočnoj strani parcele u okolišu građevine predviđena je izgradnja sprinkler bazena kao armiranobetonskog kubusa tlocrtnih dimenzija 3 x 5,8 i visine 2,2 metara, s debljinom stijenki od 25 centimetara. Bazen će činiti sastavni dio sustava aktivne protupožarne zaštite. Na južnom dijelu parcele planirana je i izgradnja dvaju potpornih zidova visine do 1,5 metra, čiji će presjeci i armatura biti definirani statičkim proračunom, radi stabilizacije terena.
O hlađenju treba razmišljati prije prvog toplinskog vala. Danas su dostupne inovacije koje troše manje, filtriraju zrak i prilagođavaju se prostoru.
10:30 12 d 13.04.2026
Kreće val uređenja plaža na jugu Hrvatske: Ronioci će pod morem imati pune ruke posla
Plaže treba redovito održavati. Novi val radova kojima će se povećati kvaliteta kupališta pred novu turističku sezonu planira se i u Dubrovniku.
10:21 18 h 25.04.2026
Jedna nadbiskupija u Slavoniji ostala je bez 13.000 hektara zemlje, šuma i zgrada. Vlada RH upravo je donijela odluku o zamjenskim kvadratima.
10:19 18 h 25.04.2026
Radi poboljšanja kvalitete prometa, državna cesta DC76 treba alternativu. Nakon odbijanja žalbe koju je podnio ZG-Projekt kreće projektiranje 20 km.
10:18 18 h 25.04.2026
Svugdje u Hrvatskoj fali stanova za mlade: U ovoj županiji traže se i zbog brakova i zbog razvoda
U jednoj županiji u Hrvatskoj stanovi se traže i zbog razvoda i zbog brakova. Koliko jeftinih kvadrata treba za mlade obitelji pokazat će studija.
10:18 18 h 25.04.2026
Povratak građevinskog diva: Tehnika dobila ogroman posao blizu Zagreba, gradit će nove bazene
Novo kupalište u Sisku gradit će se na lokaciji koja je nekima kontroverzna. Milijunsko gradilište bilo bi između starog lječilišta i poznatog jezera.
15:15 1 d 24.04.2026
Novi pothodnik zamijenio bi opasni prelazak preko pruge. Na kobnom prijelazu prije nešto više od godinu dana tragično je stradao 14-godišnjak.
15:10 1 d 24.04.2026
Hrvatska dobiva još jednu obilaznicu: Na trasi će biti 3 rotora i 2 kilometarska vijadukta
U kombinaciji s postojećim i planiranim prometnicama, uključujući autocestu A3, obilaznica će omogućiti učinkovitije povezivanje regionalnih pravaca.
12:40 1 d 24.04.2026