O hlađenju treba razmišljati prije prvog toplinskog vala. Danas su dostupne inovacije koje troše manje, filtriraju zrak i prilagođavaju se prostoru.
10:30 12 d 13.04.2026

Park Gradac | Foto: Grad Dubrovnik
Dubrovnik se ponovio za nekoliko važanih nekretnina koje će omogućiti realizaciju gradskih projekata. Potpredsjednik Vlade i ministar prostornoga uređenja, graditeljstva i državne imovine, Branko Bačić, uručio je u Dubrovniku dodatak ugovora o darovanju nekretnina u vlasništvu Republike Hrvatske Gradu Dubrovniku. Ugovori su vezani uz izgradnju dječjeg vrtića Komolac i pripadajuće pristupne ceste. Dodatno ugovorena je i uporaba nekretnina u državnom vlasništvu u Mokošici (ex-Ambulanta) i Sustjepanu (ATD Shell).
Također, u Biskupskom ordinarijatu, ministar Bačić sastao se s biskupom mons. Rokom Glasnovićem, gdje je svečano potpisan ugovor o darovanju kuće s pripadajućim zemljištem, površine 610,53 četvornih metara. Nekretnina se nalazi u Ulici Braće Andrijića, u staroj gradskoj jezgri i neposrednoj blizini postojećih nekretnina Dubrovačke biskupije.
Uz sve ovo, s Bačićem je u Dubrovnik stigla i suglasnosti na konačne prijedloge izmjena i dopuna Urbanističkog plana uređenja Radeljević–Libertas, Prostornog plana Grada Dubrovnika te Generalnog urbanističkog plana Grada Dubrovnika. Iz Grada Dubrovnika kažu kako je na ovaj način potvrđena uspješna suradnja između Ministarstva i Grada Dubrovnika na nizu projekata usmjerenih prema unaprjeđenju urbanog razvoja, jačanju kulturne i društvene infrastrukture te poboljšanju kvalitete života građana Dubrovnika.

Branko Bačić u Dubrovniku | foto: Ministarstvo prostornog uređenja, graditeljstva i državne imovine
Početkom listopada ove godine donesena je Odluka o darovanju nekretnine u vlasništvu RH Dubrovačkoj biskupiji. Nekretnina je vrijedna 1,98 milijuna eura i bit će uređena za smještaj mladih obitelji po simboličnim najamninama.
– Vrijednost je velika s obzirom na to da se nekretnina nalazi u jednom od najelitnijih dijelova Republike Hrvatske – u staroj gradskoj jezgri. Razlog potpisivanja ovog ugovora jest želja da doprinesemo revitalizaciji jezgre, jer će Biskupija adaptirati staru kuću u nove stanove za dubrovačke mlade obitelji, čime će se potaknuti povratak mladih ljudi u povijesni centar, rekao je ministar.
Ministar je podsjetio da je Vlada još 1. veljače 2019. godine donijela zaključak kojim se navedena zgrada planirala prepustiti u vlasništvo Dubrovačkoj biskupiji, ali su se morale riješiti određene pretpostavke.
– To smo sada i učinili. S Biskupijom smo već razgovarali o mogućnosti provedbe zamjene zemljišta koja bi omogućila realizaciju Nacionalnog plana stambene politike i programa priuštivog stanovanja. Takvom zamjenom Biskupiji bi se omogućila izgradnja objekata potrebnih za djelovanje Katoličke Crkve, pojasnio je ministar.
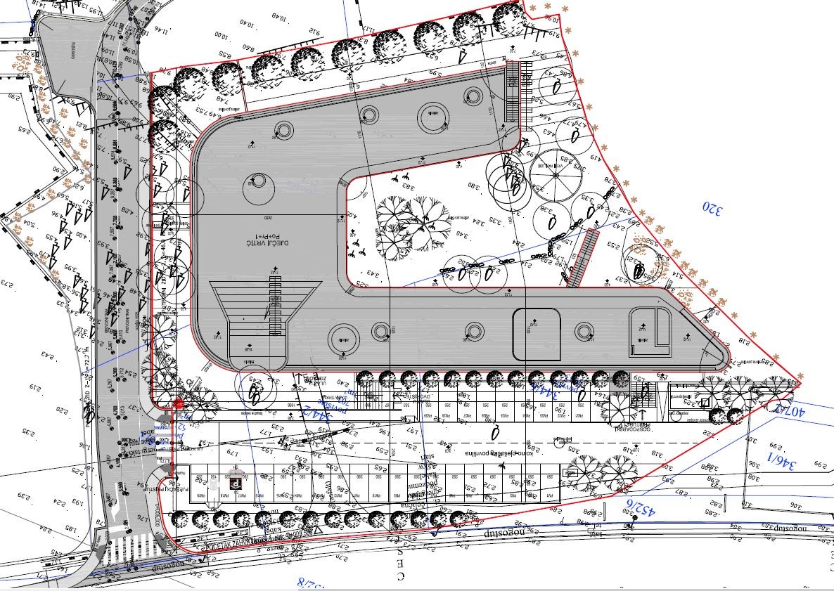
Po potpisivanju dodatka ugovora o darovanju nekretnina za dječji vrtić Komolac i rješavanju imovinskopravnih odnosa za preostali suvlasnički dio čestice, Grad Dubrovnik ostvaruje preduvjete za početak realizacije projekta. Ovdje treba i reći da je Vlada na sjednici održanoj 26. rujna 2025. donijela je odluku o izmjenama i dopunama darovanja zemljišta u k.o. Komolac površine 2.576 metara kvadratnih, čime se Gradu Dubrovniku omogućuje izgradnja dječjeg vrtića i rekonstrukcija pristupne ceste.
Vrtić Komolac predviđen je za smještaj 180 djece u 4 jasličke, 6 vrtićkih grupa te 1 grupu za senzornu integraciju djece s poteškoćama u razvoju. Projekt je prijavljen na poziv Ministarstva znanosti i obrazovanja kroz Nacionalni plan oporavka i otpornosti 2021.–2026., a Ugovor o dodjeli bespovratnih sredstava potpisan je 3. travnja 2023. godine.

dječji vrtić Komolac | foto: Grad Dubrovnik
Ministar Bačić je gradonačelniku Frankoviću također uručio i Ugovor o uporabi nekretnine u vlasništvu RH za potrebe uređenja i adaptacije prostora za kulturne, društvene i sportske manifestacije, sastanke i radionice Gradskog kotara Mokošica, u naravi objekt bivše Ambulante površine 109 metara kvadratnih.
Kao i Ugovor o uporabi poslovnih prostora na adresama Sustjepanska obala 31 i 32, zajedničke površine 146,81 četvornih metara, koji će služiti kao prostor za pohranu kulturne građe gradskih ustanova. Prostori se također daju na uporabu bez naknade, uz obvezu Grada da ih u roku od dvije godine prilagodi predviđenoj namjeni.
– Grad Dubrovnik uputio je Ministarstvu zamolbu za dodjelu na uporabu dvije slobodne zgrade na nekretninama u k.o. Sustjepan (Sustjepanska obala 31–32), koje će Grad koristiti kao skladišni prostor za kulturne ustanove u svom vlasništvu. Na predmetnim nekretninama nalazi se sedam zgrada, od kojih su dva prostora trenutno slobodna. Preostale zgrade bit će dodijeljene na uporabu nakon završetka postupaka ovrhe i iseljenja bespravnih korisnika, u suradnji s društvom Državne nekretnine, kažu iz Grada.
– Ustupanjem objekta ex-Ambulante Mokošici ćemo osigurati prostor društvene namjene koji joj sad nedostaje, dok ćemo uređenjem nekretnina u Sustjepanu uvelike ispuniti potrebe naših kulturnih ustanova za smještaj njihove građe, rekao je gradonačelnik.
Uz navedene ugovore, Gradu Dubrovniku uručene su i tri suglasnosti. I to na: konačni prijedlog izmjena i dopuna Urbanističkog plana uređenja Radeljević-Libertas, konačni prijedlog izmjena i dopuna Prostornog plana Grada Dubrovnika i konačni prijedlog izmjena i dopuna Generalnog urbanističkog plana Grada Dubrovnika.
– U rekordno brzom vremenu smo dali suglasnost na tri prevažna dokumenta. S obzirom na kvalitetu izrade i poštivanje Zakona o prostornom uređenju u opuštenom postupku smo mogli dati suglasnost na izmjene Prostornog plana koji određuje najskuplji i najkvalitetniji prostor u Hrvatskoj, rekao je ministar Bačić dodavši kako suglasnosti otvaraju put daljnjem unaprjeđenju prostornog i urbanističkog planiranja Grada Dubrovnika, u skladu s njegovim razvojnim potrebama i prioritetima.
Pridružite se našoj Viber zajednici i prvi saznajte sve informacije.
O hlađenju treba razmišljati prije prvog toplinskog vala. Danas su dostupne inovacije koje troše manje, filtriraju zrak i prilagođavaju se prostoru.
10:30 12 d 13.04.2026
Kreće val uređenja plaža na jugu Hrvatske: Ronioci će pod morem imati pune ruke posla
Plaže treba redovito održavati. Novi val radova kojima će se povećati kvaliteta kupališta pred novu turističku sezonu planira se i u Dubrovniku.
10:21 18 h 25.04.2026
Jedna nadbiskupija u Slavoniji ostala je bez 13.000 hektara zemlje, šuma i zgrada. Vlada RH upravo je donijela odluku o zamjenskim kvadratima.
10:19 18 h 25.04.2026
Radi poboljšanja kvalitete prometa, državna cesta DC76 treba alternativu. Nakon odbijanja žalbe koju je podnio ZG-Projekt kreće projektiranje 20 km.
10:18 18 h 25.04.2026
Svugdje u Hrvatskoj fali stanova za mlade: U ovoj županiji traže se i zbog brakova i zbog razvoda
U jednoj županiji u Hrvatskoj stanovi se traže i zbog razvoda i zbog brakova. Koliko jeftinih kvadrata treba za mlade obitelji pokazat će studija.
10:18 18 h 25.04.2026
Povratak građevinskog diva: Tehnika dobila ogroman posao blizu Zagreba, gradit će nove bazene
Novo kupalište u Sisku gradit će se na lokaciji koja je nekima kontroverzna. Milijunsko gradilište bilo bi između starog lječilišta i poznatog jezera.
15:15 1 d 24.04.2026
Novi pothodnik zamijenio bi opasni prelazak preko pruge. Na kobnom prijelazu prije nešto više od godinu dana tragično je stradao 14-godišnjak.
15:10 1 d 24.04.2026
Hrvatska dobiva još jednu obilaznicu: Na trasi će biti 3 rotora i 2 kilometarska vijadukta
U kombinaciji s postojećim i planiranim prometnicama, uključujući autocestu A3, obilaznica će omogućiti učinkovitije povezivanje regionalnih pravaca.
12:40 1 d 24.04.2026