Novosti Spremni na sve: Uz granicu na istoku gradi se nova zgrada hitne, imat će 740 kvadrata i dvije etaže

Spremni na sve: Uz granicu na istoku gradi se nova zgrada hitne, imat će 740 kvadrata i dvije etaže

Ivana Solar
Ivana Solar

04. travanj 2026.

Google Dodajte Bauštela.hr kao željeni izvor na Googleu
Spremni na sve: Uz granicu na istoku gradi se nova zgrada hitne, imat će 740 kvadrata i dvije etaže

zgrada hitne pomoći, Županja | foto: screen shot EOJN

Građevina će biti smještena unutar građevinskog područja naselja Županja, a natječaj za izvođača radova očekuje se iza Uskrsa.

Zavod za hitnu medicinu Vukovarsko-srijemske županije u javno savjetovanje je uputio projekt izgradnje zgrade hitne medicinske pomoći u Županji. Vrijednost investicije je procijenjena na 483.382,40 eura, savjetovanje je otvoreno do 7. travnja nakon čega se očekuje natječaj za izvođača radova.

Nova zgrada hitne medicine u Županji predstavlja važan infrastrukturni projekt za cijelu lokalnu zajednicu. Njome će se unaprijediti uvjeti rada medicinskog osoblja te povećati kvaliteta i brzina pružanja hitne pomoći. Projekt je usklađen s prostornim planovima grada i važećim građevinskim propisima.

Posebna pažnja posvećena je funkcionalnosti, sigurnosti i modernom pristupu organizaciji zdravstvenih usluga. Očekuje se da će novi objekt značajno doprinijeti boljoj zdravstvenoj skrbi stanovnika Županje i okolice.

zgrada hitne pomoći, Županja | foto: screen shot EOJN

Lokacija i urbanistički uvjeti

Građevina će biti smještena unutar građevinskog područja naselja Županja, u zoni stalnog stanovanja. Lokacija je definirana urbanističkim planovima grada te je već ranije predviđena za takvu vrstu javne namjene.

Parcela na kojoj će se graditi ima površinu od 1.040 četvornih metara i pravilnog je, izduženog pravokutnog oblika. Smještena je u smjeru sjeveroistok – jugozapad, što omogućuje dobru organizaciju prostora.

Pristup parceli osiguran je iz Ulice dr. Franje Račkog, koja predstavlja glavnu prometnu poveznicu. Ulaz na česticu predviđen je s njezine sjeveroistočne strane.

zgrada hitne pomoći, Županja | foto: screen shot EOJN

Opis zgrade i osnovni tehnički podaci

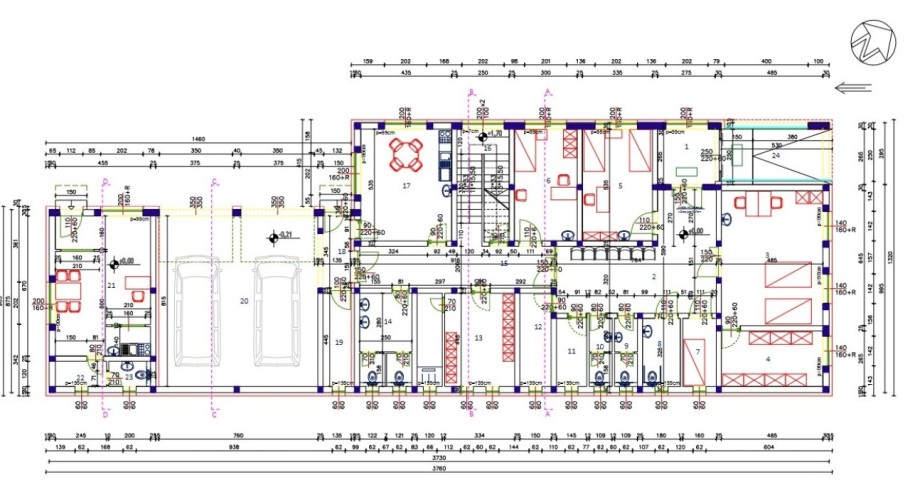
Zgrada nove hitne projektirana je kao slobodnostojeći objekt s dva nivoa, odnosno prizemljem i katom. Ukupna neto površina iznosi oko 581 četvorni metar, dok bruto površina doseže oko 739 četvornih metara.

Objekt će imati razveden oblik, s različitim volumenskim dijelovima koji prate funkciju prostora. Prednji dio zgrade ima dvije etaže, dok je stražnji dio prizeman i namijenjen garaži i pratećim sadržajima.

U garažnom prostoru predviđen je smještaj dva vozila hitne pomoći. Visine prostorija projektirane su tako da omogućuju nesmetan rad i kretanje osoblja i vozila.

Najviši dio zgrade doseže visinu od oko 10,8 metara. Konstrukcija i oblikovanje prilagođeni su suvremenim standardima javnih zdravstvenih objekata.

zgrada hitne pomoći, Županja | foto: screen shot EOJN

Organizacija prostora i funkcionalnost

U prizemlju će biti smješteni ključni prostori za rad hitne medicinske službe, uključujući prostor za reanimaciju i pregled pacijenata. Tu će se nalaziti i čekaonica, prostorije za liječnike i medicinske sestre, prostor za lijekove te sanitarni čvorovi za pacijente i osoblje.

Predviđeni su i posebni prostori za odmor djelatnika, garderobe te tehničke i pomoćne prostorije. Posebno je važan prostor za nesmetan prihvat i transport pacijenata, uključujući natkriveni ulaz za vozila hitne pomoći.

U stražnjem dijelu zgrade nalazi se garaža i prostor za vozače s pripadajućim sadržajima. Dok su na katu planirani edukacijski prostor, arhiva i strojarnica. Kretanje unutar zgrade projektirano je bez prepreka kako bi se omogućila pristupačnost svim korisnicima. Ulazi i komunikacijski pravci organizirani su tako da razdvajaju pacijente, osoblje i vozila radi veće učinkovitosti. Zgrada je projektirana za neprekidan rad tijekom 24 sata.

zgrada hitne pomoći, Županja | foto: screen shot EOJN