Ide milijunska rekonstrukcija kultnog zagrebačkog okupljališta, imamo nacrte za 2.400 kvadrata
kino | foto: Freepik
Građevina je stradala čak tri puta, u dva potresa i jednoj oluji, a čekaju ju opsežni radovi koji će se izvoditi 12 mjeseci.
Grad Zagreb pokrenuo je javnu nabavu za izvođenje radova cjelovite obnove zgrade Kina Tuškanac, jednog od najvažnijih prostora filmske kulture u Zagrebu. Kino je izvan funkcije zbog oštećenja nosive konstrukcije nastalih u potresima, koje je dodatno pogoršano olujom 2023. godine, te zbog toga ulazi u fazu temeljite obnove.
Procijenjena vrijednost obnove, uključujući opremanje, iznosi sedam milijuna eura bez PDV-a i u potpunosti se financira iz gradskog proračuna. Početak radova planiran je za jesen, a završetak se očekuje u roku od 12 mjeseci.
Povratak publici
Radovima će se unaprijediti tehnički uvjeti za prikazivanje filmova i boravak publike, uz zadržavanje prepoznatljivog identiteta kina koje desetljećima ima posebno mjesto u kulturnom životu grada.
- Kino Tuškanac godinama je jedno od ključnih mjesta nekomercijalnog filmskog programa u Zagrebu, prepoznato po prikazivanju klasika, autorskog filma i festivalskih programa. Njegova obnova važna je ne samo zbog sigurnosti i očuvanja prostora, nego i zbog prikazivanja kvalitetnog filmskog sadržaja koji oblikuje kulturni život grada. Cilj nam je vratiti Tuškanac publici u punom kapacitetu, kao mjesto susreta, razmjene ideja i vrhunskog filmskog programa, poručio je Tomislav Tomašević, gradonačelnik Grada Zagreba.

Ojačanja i rekonstrukcija
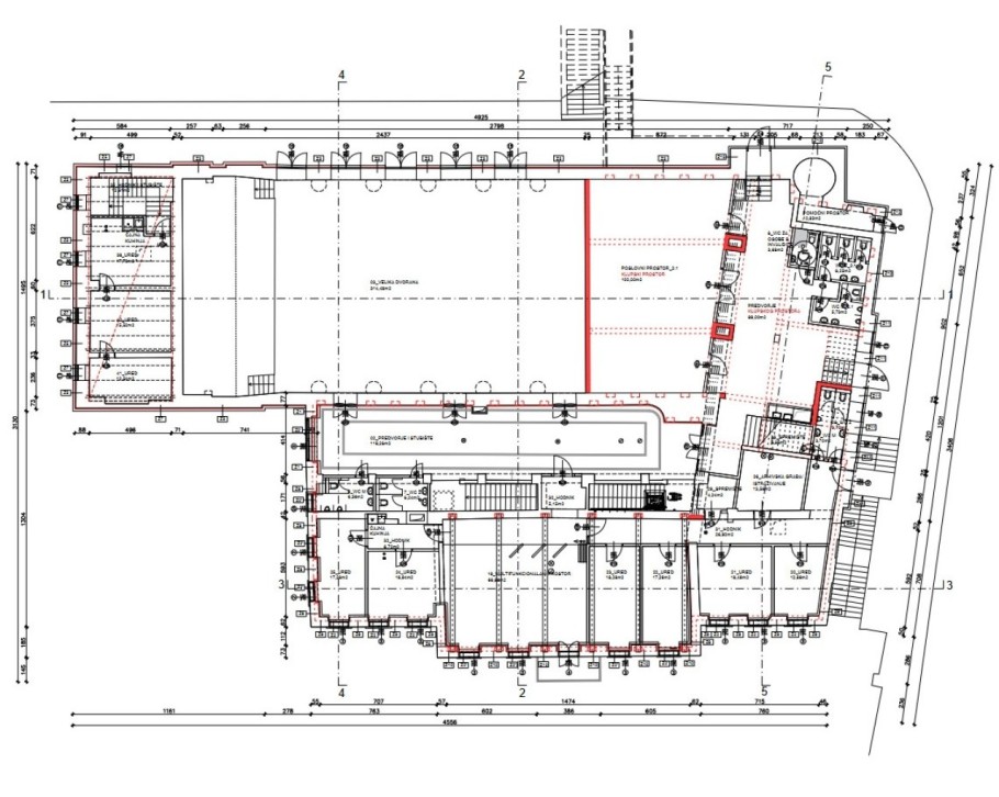
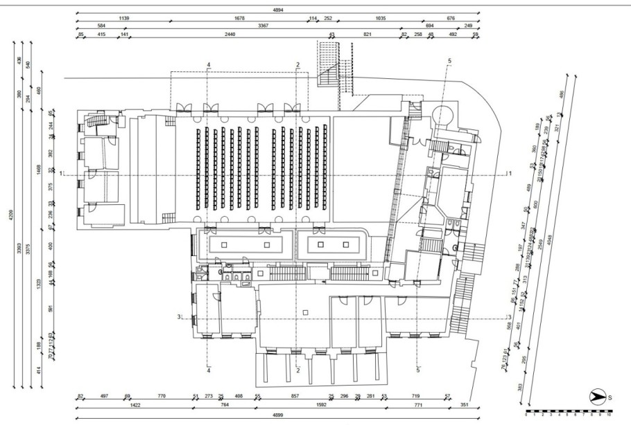
Ukupna površina kina iznosi oko 2.400 kvadrata. Obnova obuhvaća ojačanje konstrukcije i cjelovito uređenje uz očuvanje vanjskog izgleda i osnovne namjene prostora. Zahvati u tlocrtu svode se na nužne intervencije radi sigurnosti, dok je fokus radova na najosjetljivijim dijelovima zgrade – velikoj dvorani, krovištu i ulaznom prostoru.
Predviđeno je ojačanje lukova u prizemlju primjenom suvremenih materijala, ugradnja novih armiranobetonskih stupova, zamjena oštećenih drvenih greda te potpuna rekonstrukcija krovišta novom čeličnom konstrukcijom, uz očuvanje postojećeg stropa velike dvorane.


Postojeće stanje
Građevinska čestica je nepravilnog oblika ukupne površine 1.173 kvadrata, s istoka ju omeđuje Ulica Tuškanac, sa sjevera građevina javne garaže, a sa zapada i juga park šuma. Ukupna tlocrtna površina građevine, prema geodetskoj izmjeri je 1.173 kvadrata, najveće dimenzije 48,9 x31,52 metara. Visina zgrade je prizemlje, 1.kat, 2. kat i potkrovlje ukupne visine do vijenca najvišeg dijela zgrade 13 metara. Tu je i razvedeni krov pokriven crijepom i limom.
U potresu koji se dogodio 22. ožujka 2020. i 28. prosinca 2020. na građevini su nastala oštećenja konstrukcijskih i ne konstrukcijskih elemenata koja su utvrđena vizualnim pregledom. Naknadno, u nevremenu koje je pogodilo Zagreb 3. listopada 2023. nastala su nova oštećenja zbog kojih je zatraženo dodatno vještačenje.


Oštećenja
Nakon detaljnog pregleda zgrade utvrđena su brojna oštećenja, ponajviše kao posljedica potresa i dugotrajnog utjecaja vlage. Najveći problemi zabilježeni su na istočnom dijelu prvog kata, gdje su oštećeni nosivi i pregradni zidovi, nadvoji te stropna konstrukcija koja je i ranije bila u lošem stanju. Uočen je i niz novih pukotina, dok su postojeće dodatno proširene. Pojedini zidovi izgubili su svoju ravninu, što dodatno upućuje na narušenu stabilnost konstrukcije.
Značajna oštećenja primijećena su i na ulazu u Hemigway bar, gdje je stradala nosiva drvena konstrukcija. Na stropovima i zidovima prizemlja te preostalog dijela prvog kata evidentirane su brojne manje pukotine. Vanjski zidovi prizemlja pokazuju znakove dugotrajnog djelovanja vlage, što dodatno ubrzava njihovu degradaciju.
Na pročelju i vijencu vidljiv je velik broj pukotina, nastalih kombinacijom potresnog djelovanja i vlage. I unutar same dvorane uočene su manje pukotine, također povezane s istim uzrocima. Dodatno, dio stropne konstrukcije već je ranije bio oštećen i privremeno pridržan metalnim podupiračima, dok je drvena konstrukcija na tim mjestima u izrazito lošem stanju. Većina dimnjaka u međuvremenu je uklonjena, što također mijenja izvorno stanje objekta.