O hlađenju treba razmišljati prije prvog toplinskog vala. Danas su dostupne inovacije koje troše manje, filtriraju zrak i prilagođavaju se prostoru.
10:30 23 h 13.04.2026
obnova zgrade Mesnička 23, Zagreb | foto: screen shot EOJN
'Šminkanje' ureda Vlade i Sabora u Mesničkoj 23 koštat će 1,4 milijuna eura, natječaj za izvođača radova izgledno će biti objavljen do kraja mjeseca.
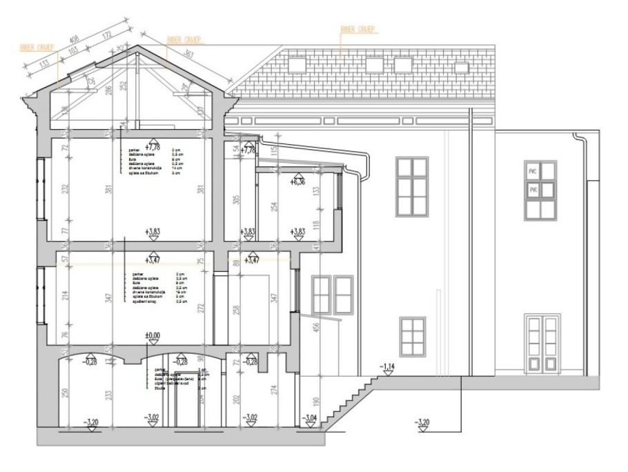
Ured za opće poslove Hrvatskoga sabora i Vlade Republike Hrvatske u javno je savjetovanje uputio projekt rekonstrukcije instalacija i uređenje zgrade u Mesničkoj 23, u Zagrebu. Javno savjetovanje otvoreno je do 16. ožujka nakon čega se očekuje raspisivanje natječaja za izvođača radova. Početna vrijednost radova iznosi nešto više od 1,4 milijuna eura.
Obzirom da ova zgrada predstavlja kulturno dobro, prethodno projektu rekonstrukcije izveden su konzervatorsko-restauratorski istražni radovi na prvom katu zgrade ureda za ljudska prava i prava nacionalnih manjina. Ciljem je bio istražiti potencijalno postojanje oslika ispod slojeva naličja. S obzirom da je u jednoj prostoriji također na prvom katu otkriveno postojanje stropnog oslika, koji je nakon otkrića i restauriran, bilo je potrebno istražiti da li oslici postoje i u drugoj prostoriji ili hodniku.
Posao je obavila tvrtka DOK-ART. Sonde su otvorene na sedam pozicija i nisu pokazale prisustvo zidnih niti stropnih oslika. Radi se isključivo o jednobojnim slojevima koji su se nanosili na zidove i stropove kroz povijest. Jedna sonda otvorena je na podu hodnika koja prikazuje slojeve i način tadašnje gradnje koji se sastoje od recentnog parketa, daske, sloja šute te opet daske.
Ovim projektom predviđeni su radovi na rekonstrukciji instalacija te posljedično izvođenje radova s obzirom na prirodu vođenja novih trasa instalacija. Svi radovi projektirani su kroz trajne mjere sanacije i rekonstrukcije elemenata u koje zadiru, te će obuhvatiti podrum, prizemlje, prvi kat i potkrovlje, s ciljem poboljšanja funkcionalnosti prostora, obnove dotrajalih instalacija i uređenja interijera.
Prema arhitektonskom projektu obavit će se građevinsko obrtnički radovi čijom se izvedbom osigurava sigurnost u korištenju građevine. Sama intervencija ne predviđa preinake u unutrašnjem rasporedu zidova i prostorija, već samo sanaciju, rekonstrukciju kao posljedica izvođenja novih instalacija.
Nije predviđeno ni zadiranje u konstrukcijske elemente građevine, kao ni u vanjsku ovojnicu zgrade (pročelja, prozori, krov) osim manjeg popravka i bojanja dvorišta atrija sa kojeg se uklanjaju suvišne vanjske jedinice postojećih klimatizacijskih uređaja.
U podrumu je planirano uređenje kotlovnice te izvođenje radova na prekidu kapilarne vlage. Obnovit će se podovi u hodnicima, pri čemu će se ukloniti postojeće obloge, izvesti hidroizolacijski sloj i postaviti nove obloge. Nakon postavljanja novih instalacija slijedit će sanacija zidova i stropova, a predviđena je i potpuna rekonstrukcija sanitarnih prostora.
Posebna pažnja posvetit će se obnovi stubišta od terazza uklanjanjem tapisona, kemijskim čišćenjem, poliranjem i impregnacijom. Postojeća unutarnja drvena stolarija bit će restaurirana uklanjanjem stare boje, brušenjem i ponovnim bojanjem, bez uklanjanja dovratnika.
U prizemlju će se ukloniti postojeća drvena portirnica, a ulazno stubište od terazza bit će očišćeno, polirano i sanirano. Planirana je i potpuna zamjena podnih slojeva – uklanjanje postojećeg parketa, drvene oplate i nasipa šute te ugradnja novog parketa sa suhim estrihom. U podnim slojevima bit će postavljene cijevi radijatorskog grijanja.
Izvest će se nove elektroinstalacije za utičnice i rasvjetu, kao i spušteni stropovi prema projektnoj dokumentaciji. Sanitarni čvorovi bit će u potpunosti obnovljeni, a postojeća drvena stolarija restaurirana.
Na prvom katu također se planira obnova stubišta od terazza i zamjena dotrajalih podnih slojeva novima, s integriranim instalacijama grijanja. U svečanoj dvorani predviđeno je dodatno ojačanje podne konstrukcije ugradnjom dvostruke OSB ploče radi povećanja stabilnosti poda.
Bit će izvedene nove instalacije za utičnice i rasvjetu te spušteni stropovi, osim u povijesnoj kutnoj prostoriji na jugoistočnom dijelu zgrade gdje će se postojeći dekorativni strop s profilacijama u potpunosti zaštititi tijekom radova. Predviđena je i rekonstrukcija sanitarnih čvorova te obnova unutarnje stolarije.
U potkrovlju će se obnoviti stubište, ukloniti postojeće podne obloge te postaviti novi parket u hodnicima, dok će u ostalim prostorijama biti postavljene vinilne ploče ili letve. Zbog ugradnje instalacija grijanja i hlađenja planirano je djelomično uklanjanje gips-kartonskih obloga krovišta. Također će se izvesti nove elektroinstalacije, spušteni stropovi ili obloge krovišta te zamjena dijela unutarnjih pregrada. Povijesna drvena stolarija bit će restaurirana, dok će novija vrata biti zamijenjena.
Na pročeljima i krovu ne planiraju se veće intervencije. Izuzetak je dio pročelja u atriju gdje će se, nakon uklanjanja vanjskih klima jedinica, sanirati rupe i prodori u zidu. Oštećenja će biti popunjena mortom, zaglađena žbukom iste granulacije te ponovno obojana u postojeću boju.
O hlađenju treba razmišljati prije prvog toplinskog vala. Danas su dostupne inovacije koje troše manje, filtriraju zrak i prilagođavaju se prostoru.
10:30 23 h 13.04.2026
Stare zgrade troše i do 3 puta više energije od novih, a dobra izolacija fasade može prepoloviti račune i za grijanje zimi i za klimu ljeti.
10:30 2 d 11.04.2026
Velik iskorak domaće tvrtke: Postali zastupnici jedne od najnaprednijih tehnologija za rad na visini
Tvrtka Telescopic Peršić postala ekskluzivni zastupnik Magni strojeva za manipulaciju teretom i rad na visini za tržišta Hrvatske i Slovenije.
10:20 4 d 09.04.2026
Ne trebate iskustvo: Za ove radove u kući nije potreban majstor, a dovoljan vam je samo jedan alat
Brtvilo i ljepilo u jednom, elastičan i otporan na temperaturu, a koristiti ga mogu i amateri. Zato se treba naći u kutriji s alatom svakog majstora.
15:00 6 d 07.04.2026
Orban je 'pao', njegova ostavština su i stadioni: Dva u Hrvatskoj i jedan u Srbiji, ali to nije sve
Mađarske investicije nisu ostale unutar granica države, već su bile usmjerene i prema klubovima u susjednim zemljama, osobito ondje gdje žive Mađari.
16:56 16 h 13.04.2026
Most Posedarje prolazi poviše grada Zadra, a dio je Jadranske magistrale i kao takav važan za protočnost prometa, posebno u sezoni.
09:03 2 d 12.04.2026
Digitalizirano priznavanje inozemnih 'papira' za majstore: Nema više šaltera, sve u par klikova
Postupak priznavanja inozemnih stručnih kvalifikacija od uvijek je predstavljao pravu muku za građevince, a sada je tomu kraj.
09:01 2 d 12.04.2026
Split između odluka i nasljeđa: Sudbinu Poljuda presudit će stručnjaci za lexan, beton i armaturu
Grad Split je rekao svoje, osniva se stručne skupine za armirano-betonsku i krovnu konstrukciju, nakon toga će se znati sve.
08:59 2 d 12.04.2026