Lithium SuperPack NG baterija (LSP NG)
Na bateriju LSP NG mogu se spojiti i najzahtjevnija trošila na plovilu poput bočnih potisnika i sidrenog vitla. To otvara nove perspektive primjene.
16:00 2 d 30.03.2026

Murter-Kornati | foto: Općina Murter-Kornati
Narodna knjižnica i čitaonica u Murteru utemeljena je 1866. godine pod nazivom Društvo seoske izobraženosti, te je jedna od najstarijih dalmatinskih čitaonica i, provjereno, prva seoska čitaonica u Dalmaciji, kažu iz ove ustanove. Do 1972. djelovala je u staroj ‘Sokolani’, a danas se nalazi na adresi Butina 2.
Općina Murter-Kornati u visokoj je fazi pripreme realizacije projekta velike obnove ove građevine. Planirana je promjena namjene i preuređenje napuštenog prostora spremišta u prostor javne i kulturne namjene, knjižnicu. Napušteni prostor je smješten u središnjem dijelu prizemlja postojeće zgrade koja je uzvišena u odnosu na okolnu prometnicu.
Radovi će biti sufinancirani kroz EU projekt Unaprjeđenje Narodne knjižnice i čitaonice Murter – PK.6.4.01.0056, u sklopu Programa konkurentnost i kohezija 2021.-2027., a izrađeni su prema Glavnom i Izvedbenom projektu koje je potpisala glavna projektantica, Ivana Ivić Žarko.
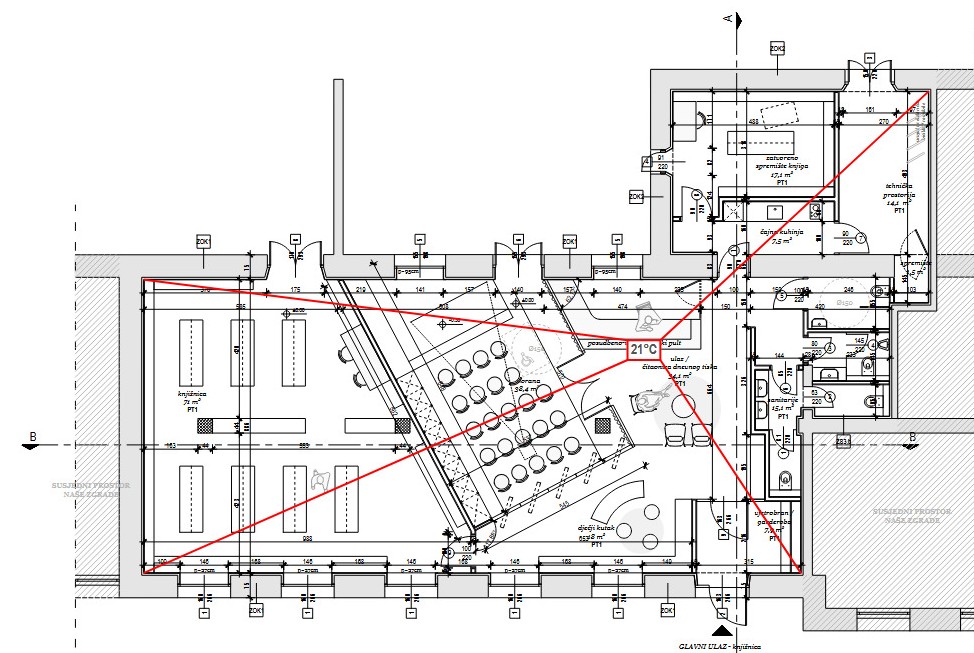
Okosnica projekta je podjela novog prostora u nekoliko zona: ulaz s posudbenim i informacijskim pultom, čitaonicu dnevnog tiska, dječji odjel, knjižnicu s policama i prostorom za učenje, višenamjensku dvoranu za edukacije i događanja, sanitarne čvorove prilagođene osobama s invaliditetom, spremište knjižne građe te čajnu kuhinju za zaposlenike. Osim funkcionalne prenamjene, projekt obuhvaća i značajno poboljšanje energetske učinkovitosti same zgrade, čime će se smanjiti troškovi održavanja i osigurati dugoročna održivost.

Narodna knjižnica i čitaonica u Murteru, projekt | foto: screen shot EOJN
Projektirana knjižnica ima postojeće ulaze sa sjeverne i južne strane postojeće zgrade. Na sjeveru se ulaz koristi kao glavni ulaz za posjetitelje, a s južne strane se ulazi koriste kao gospodarski ulaz za zaposlenike i pristup tehničkoj prostoriji.
Kako bi se povećala ugoda boravka u prostoru prilikom ulaska i izlaska, projektom je predviđen ulazni vjetrobran. Projektom se predviđa ugradnja novih ulaznih vrata i staklenih stijenki koje će biti proračunate na snažne nalete vjetra.
Glavni ulaz vodi u centralni dio knjižnice, iz kojeg se pristupa garderobi, sanitarijama, dvorani, knjižnici i dječjem odjelu. Odvojeni ulaz s jugoistoka vodi u prostor za zaprimanje narudžbi i zatvoreno spremište knjižnične građe. Taj prostor je povezan s centralnim dijelom knjižnice preko proširenog hodnika s čajnom kuhinjom.
Iz proširenog hodnika zgrade se pristupa tehničkoj prostoriji koja ima i svoj odvojeni vanjski pristup s juga. U njoj su smještena mjesta za parkiranje bicikli i punjenje električnih bicikli. Prilikom projektiranja vanjskih građevinskih elemenata (prozora) i instalacija (vanjska jedinica klima uređaja) koristit će se materijali koji imaju značajnu mehaničku otpornost.

Narodna knjižnica i čitaonica u Murteru, projekt | foto: screen shot EOJN
Zgrada je namijenjena stalnom korištenju tijekom cijele godine. Stoga se projektom predviđa uvođenje klimatizacije i mehaničke ventilacije. Grijanje i hlađenje je predviđeno multi-split sustavom klima uređaja čija je vanjska jedinica pozicionirana na zeleni ravni krov iznad tehničke prostorije i dodatno učvršćena kako bi izdržala snažne nalete vjetra.
Kako bi se zadovoljili zahtjevi zgrada gotovo nutle energije – nZEB. Utom okviru radovi uključuju postavljanje toplinske izolacije s unutarnje strane vanjskih zidova zgrade.

Narodna knjižnica i čitaonica u Murteru, projekt | foto: screen shot EOJN
Promjena namjene i uređenje napuštenog prostora planirano je u postojećoj građevini masivnih vanjskih zidova te armiranobetonskih stupova i čeličnih greda u interijeru. Pretpostavlja se da je postojeća međukatna konstrukcija armiranobetonska, a konstrukcija iste će se provjeriti prilikom izvođenja radova. Sukladno zatečenom stanju, postupit će se u skladu s mjerama zaštite od požara i zaštite od buke.
Na postojećoj konstrukciji se planira izvedba novih vanjskih prozora s južne strane zgrade na poziciji već postojećih otvora koji su trenutno zazidani. Iznad otvora planiraju se izvesti novi armiranobetonski nadvoji. Pozicija novih prozorskih otvora je takva da ne utječe na mehaničku otpornost i stabilnost zgrade.
Sva nova ugrađena vanjska bravarija će imati takva svojstva da zgrada zadovoljava zahtjeve zgrada gotovo nulte energije – nZEB. Utvrđeno je da manje promjene na postojećim zidovima koje se planiraju u interijeru ne utječu na mehaničku otpornost i stabilnost zgrade.

Narodna knjižnica i čitaonica u Murteru, projekt | foto: screen shot EOJN
Pridružite se našoj Viber zajednici i prvi saznajte sve informacije.
Lithium SuperPack NG baterija (LSP NG)
Na bateriju LSP NG mogu se spojiti i najzahtjevnija trošila na plovilu poput bočnih potisnika i sidrenog vitla. To otvara nove perspektive primjene.
16:00 2 d 30.03.2026
Rekonstrukcija državne ceste DC8 i dogradnja čvora Šmrika provest će se na spoju državne ceste DC8, državne ceste DC102 koja vodi prema otoku Krku.
16:09 16 h 01.04.2026
Dok traje rasprava o budućnosti Poljuda, često se zanemaruje činjenica da je projekt obnove već bio pokrenut, i u međuvremenu zaustavljen.
16:07 16 h 01.04.2026
Hrvatske ceste spremaju mega natječaj: Za 150 milijuna eura most, 2 tunela i 4 vijadukta
Nova prometnica zauvijek će promijeniti prometnu sliku Dalmacije. Imamo sve detalje izgradnje cijele trase.
12:55 19 h 01.04.2026
Projekt obuhvaća izgradnju drugog kolosijeka, rekonstrukciju postojećeg kolosijeka, modernizaciju kolodvora i stajališta.
10:43 21 h 01.04.2026
Osim čistog zraka, ova nabava Zagrepčanima će omogućiti i veću sigurnost u prometu. Naime, Zagreb je trenutno najmaglovitiji grad u EU.
00:05 1 d 01.04.2026
Sisak uskoro dobiva novo kupalište: Nadogradnja je starog, ali odmah pored su otpad i troska
Ciglarska graba mogla bi biti 'oaza', kao i prostor nadogradnje starog kupališta Jodno. Da pored ove lokacije nisu odlagalište otpada i troske.
15:54 1 d 31.03.2026
Veliki projekt će se izvoditi u tri faze, a upravo se sve priprema za javnu nabavu izvođača radova prve faze.
15:52 1 d 31.03.2026