Novosti Kreće velika sanacija tunela Sv. Ilija! Trajat će 3 mjeseca, a bez zatvaranja neće moći

Kreće velika sanacija tunela Sv. Ilija! Trajat će 3 mjeseca, a bez zatvaranja neće moći

Ivana Solar
Ivana Solar baustela.hr

27. ožujak 2026.

Google Dodajte Bauštela.hr kao željeni izvor na Googleu
Kreće velika sanacija tunela Sv. Ilija! Trajat će 3 mjeseca, a bez zatvaranja neće moći

tunel Sv. Ilija | foto: Splitsko-dalmatinska županija

Tunel koji spaja zaleđe s makarskom rivijerom ključan je prometni pravac za povezanost dalmatinskog zaleđa s morem.

Hrvatske ceste zaključile su javnu nabavu za sanaciju revizijskih okana zatvorenog sustava odvodnje u tunelu Sveti Ilija na državnoj cesti oznake DC76. Posao će obaviti tvrtka Hidrostres za 221.371,66 eura s PDV-om čija je ponuda bila ekonomski najisplativija. Ovdje treba reći da je s ponudom u sklopu natječaja konkurirala i tvrtka Mar čija je ponuda je iznosila 287.382,66 eura s PDV-om.

Projekt obuhvaća renovaciju opreme tunela Sveti Ilija, četvrtog najvećeg u sustavu hrvatskih prometnica izgrađenog 2013. godine, kao spoj autoceste A1 na Jadransku magistralu. Konkretno, radovi će biti fokusirani na sustav odvodnje, odnosno zamjenu okana zatvorenog sustava odvodnje.

Iako zvuči banalno, riječ je o zahtjevnom projektu koji će bitno utjecati na protočnost prometa. Naime, radovi će trajati 90 dana, što znači da ako realizacija krene kako se previđa početkom travnja (nakon uskrsnih blagdana), izgledno je da će zahvatiti prvi dio turističke sezone na Jadranu. Što nikako nije dobra vijest za makarsku rivijeru.

Rezultati pregleda

Vizualnim pregledom oštećenja obavljenim u svibnju 2024. godine, evidentirana su 84 revizijska okna. Utvrđeno je da je beton revizijskih okana generalno u vrlo dobrom stanju. No, na pojedinim oknima uočeno da je kod prethodnih sanacija mjestimično propušteno adekvatno reprofilirati zidove okna.

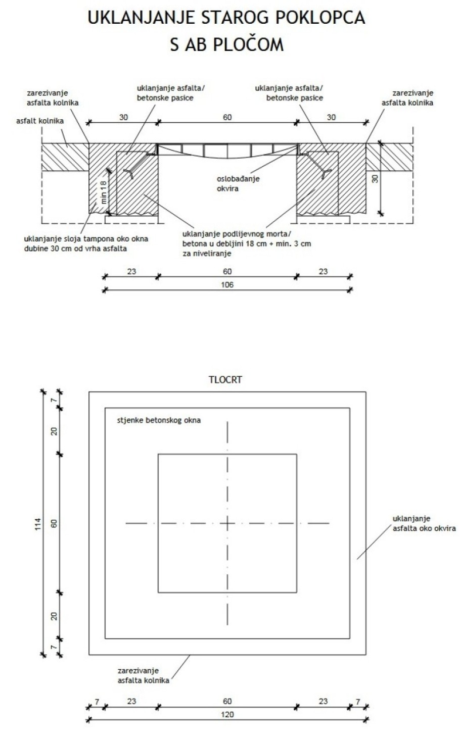
Oštećenja su grupirana u tipove: Tip A, Tip B i Tip C. Tip A predstavlja nepravilno postavljen ili dotrajao poklopac, s oštećenjima na ili oko poklopca (poklopac se ne može otvoriti, dotrajao mort za podlijevanje, oštećen asfalt oko poklopca), moguća zamjena poklopca. Tip B podrazumijeva oštećenja na AB ploči okna (pukotine u AB ploči, korozija armature), nemoguća zamjena poklopca bez nove AB ploče. Tip C je oznaka za nepravilno postavljen okvir poklopca, nije potrebna zamjena poklopca, potreban popravak oslanjanja poklopca.

tunel Sv. Ilija | foto: Splitsko-dalmatinska županija

Obuhvat radova i materijali

Prilikom odabira vrste sanacijskog zahvata, ističe se u projektu, vođeno je računa o dostupnim tunelskim poklopcima u RH. I tu je došlo do poteškoća. Naime, trenutno su na tržištu dostupni samo kružni poklopci u kružnom okviru Ø600 mm, nosivosti D 400 kN, a proces uvrštavanja u proizvodnju poklopaca novih dimenzija je zahtjevan i ne može se naručiti izrada poklopaca dimenzija koji bi odgovarali postojećim svijetlim otvorima revizijskih okana za relativno mali broj poklopaca.

Zbog toga se i kod tipa oštećenja A (dotrajao poklopac bez oštećenja AB ploče okna), mora odabrati tip sanacije koji uključuje zamjenu postojeće AB ploče okna (tip B). Budući da se kod nekih dvostrukih okana (sa dva poklopaca) sanira samo jedan poklopac, takav način sanacije nazvan je tip oštećenja A.

Kod 20 okana, iako je samo jedan poklopac dotrajao, dok drugi poklopac nema znakova neposrednog oštećenja, zamijenit će se oba poklopca, a sve u cilju pojednostavljenja radova i smanjenja budućih sanacija tunela – navedeni poklopci bi se u svakom slučaju u dogledno vrijeme trebali zamijeniti.

tunel Sv. Ilija | foto: Splitsko-dalmatinska županija

Privremena regulacija prometa

Za vrijeme izvođenja sanacije potrebno je osigurati i provesti privremenu regulaciju prometa. Prije izvođenja radova potrebno je najaviti i detaljno dogovoriti provođenje privremene regulacije prometa s odgovornom osobom od strane Investitora.

Prema tehničkoj dokumentaciji privremenu regulaciju prometa  treba izvesti u skladu s Elaboratom privremene prometne regulacije koji će se zasebno naručiti. Elaborat odobrava Investitor i nadležno državno tijelo (MUP). Za vrijeme radova je potrebno u potpunosti zatvoriti promet kroz cijev tunela u kojem se izvode radovi. Minimalno trajanje prekida prometa iznosi 48 sati, uz uvjet da se sanacija svih okana izvodi istovremeno.

Duže putovanje

Ako je tunel Sveti Ilija zatvoren, promet između zaleđa i Makarske odvija se alternativnim pravcem preko Zagvozda i stare Biokovske ceste. Tako, primjerice, vozila iz Imotskog kreću prema Zagvozdu te nastavljaju planinskom cestom preko Biokova prema Makarskoj. Ova ruta je znatno zahtjevnija od prolaska kroz tunel, ali ostaje jedina izravna kopnena veza u tom slučaju.

Udaljenost se povećava na približno 55 do 65 kilometara, ovisno o točnoj relaciji. U usporedbi s prolaskom kroz tunel, put je duži za oko 20 do 25 kilometara. Vrijeme putovanja produžuje se s uobičajenih 40 do 50 minuta na otprilike sat i pol do dva sata. Razlog tome je što cesta prolazi kroz zavojit i planinski teren Biokova. Zbog uskih dionica i većih uspona vožnja zahtijeva dodatni oprez, osobito u nepovoljnim vremenskim uvjetima.

tunel Sv. Ilija | foto: Splitsko-dalmatinska županija

Ključ za povezanost juga

Tunel Sveti Ilija cestovni je tunel kroz Bikovo koji povezuje obalni i kontinentalni dio Splitsko-dalmatinske županije. Tunel je dugačak 4.248 metara, ima kolnik širine od 7,7 metara i servisnu cijev sa zapadne strane dugu 4.255,62 metara. Tunel se nalazi na trasi državne ceste D76. Pozicioniran je tako da povezuje naselja Bast u općini Baška Voda s južne strane i Rastovac u općini Zagvozd sa sjeverne strane.

Nazvan je po biokovskom vrhu podno kojeg se nalazi. Radi se o četvrtom po duljini tunelu u Hrvatskoj, uz napomenu da je prema visini stijena od tunelske cijevi do vrha planine, prvi europski cestovni tunel u krškom masivu. Gradnja tunela počela je 2008. godine s sjeverne strane, probijen je u siječnju 2010. godine, a svečano otvoren 8. srpnja 2013. godine. U probijanju su sudjelovale tvrtke Hidroelektra niskogradnja iz Zagreba, koja je probijala tunel sa sjeverne strane te Konstruktor iz Splita, koji je probijao tunel s južne strane.

Da biste nastavili sa čitanjem naših pretplatničkih tekstova, morate se registrirati i prijaviti.