Lithium SuperPack NG baterija (LSP NG)
Na bateriju LSP NG mogu se spojiti i najzahtjevnija trošila na plovilu poput bočnih potisnika i sidrenog vitla. To otvara nove perspektive primjene.
16:00 4 d 30.03.2026

Lounge Lodge | foto: Ewout Huibers
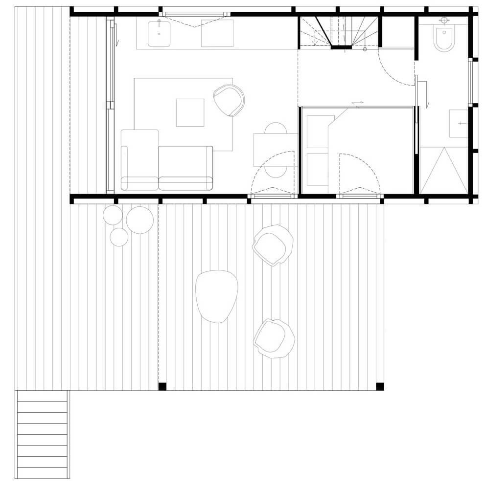
Nizozemski studio i29 i građevinska tvrtka Jatin Chaletbouw dovršili su Lounge Lodge, kompaktnu kuću za odmor u Nizozemskoj. Smještena u parku za odmor RCN Noordster u Dwingeloou, kuća za odmor od 20 četvornih metara okružena je drvećem, s kojim se stapa njezina blijedozelena drvena vanjština.
Lounge Lodge stvorili su Jatin Chaletbouw i partner i29 Chris Collaris kako bi pokazali kako se može stvoriti prepoznatljivo utočište bez ludih budžeta.
– Navikli smo na dizajnerske vile s ludim budžetima, ali što ako se sve svodi na bit utočišta? Je li moguće napraviti prepoznatljiv koncept za skromno utočište, vođen idejom pametne pristupačnosti i snagom jednostavnosti?, rekao je Collaris za dezeen.com.
Lounge Lodge sastoji se od male kabine i natkrivene vanjske terase, podignute na niskoj drvenoj platformi do koje se dolazi drvenim stubištem. Unutrašnjost je loža podijeljena na dva dijela.
Jedan dio sadrži dnevni boravak, blagovaonicu i kuhinju s pogledom na šumu kroz klizna staklena vrata. Dok se u drugom nalaze spavaća soba i kupaonica. Malo stubište pak vodi do mezanina s dodatnim prostorom za spavanje, čime se maksimalni kapacitet kabine povećava na četiri osobe.

Lounge Lodge | foto: Ewout Huibers

Lounge Lodge | foto: Ewout Huibers
Unutrašnjost Lounge Lodgea obložena je šperpločom od topole, koja je za kuhinju i donje spavaće prostore obojena u zeleno kako bi se slagala s blijedozelenom smrekovom vanjštinom. Strop i zidovi mezanina završeni su u bijelo kako bi se stvorio osjećaj prostranosti, čemu doprinosi mali, visoki prozor s pogledom na šumu.
S vanjske strane, vertikalne letvice su uvedene kako bi se fasadama dodala ‘dubina i karakter’, te kako bi se stvorile promjenjive sjene na njima tijekom dana. Tako se je objekt ugodan za boravak u svako doba dana, bez obzira na položaj sunca.

Lounge Lodge | foto: Ewout Huibers

Lounge Lodge | foto: Ewout Huibers
Ugradbeni ormari, sklopivi blagovaonski stol i klizna vrata pomažu u održavanju prostora optimalnim i unose fleksibilnost. Autori objašnjavaju kako ovo utočište u zelenilu funkcionira po principu švicarskog noža. Vrlo je malo i kompaktno, ali ima sve što treba.
– Društveni prostori poput kuhinje i dnevnog boravka su mali i stapaju se, ali se osjećaju većim zbog izravne veze s vanjskim svijetom. I dalje možete doživjeti dva djelomično odvojena prostora za spavanje i kupaonicu, ali ta mjesta također funkcioniraju zajedno kao uzvišeni prostor kada je to potrebno, kaže Collaris.

Lounge Lodge | foto: Ewout Huibers

Lounge Lodge | foto: Ewout Huibers
Lithium SuperPack NG baterija (LSP NG)
Na bateriju LSP NG mogu se spojiti i najzahtjevnija trošila na plovilu poput bočnih potisnika i sidrenog vitla. To otvara nove perspektive primjene.
16:00 4 d 30.03.2026
Projekt predsjedničke knjižnice Donalda Trumpa koji izlazi iz okvira dobio je zeleno svjetlo, ali i rok od pet godina da bude izveden.
15:53 3 d 31.03.2026
U srcu bolnice Agnes nalazi se snažna integracija naprednih digitalnih tehnologija koja brine o svemu.
16:43 4 d 30.03.2026
Zgrada se nalazi u Brooklynu, na poznatom raskrižju koje predstavlja raskorak između industrijskog i stambenog djela grada.
16:24 11 d 23.03.2026
Mađari se istaknuli drugačijom vizijom: Evo kako je Kaštelanski most mogao izgledati, ali neće
Kao najbolje tehničko-oblikovno rješenje za Kaštelanski most, odabrano je ono 3LHD-a i Projektni Inženirji. A zbog ove stvari su se izdvojili Mađari.
10:02 13 d 21.03.2026
Jedinstven projekt na našem otoku: Nagradila ga je i Europska unija, a sada kreće u realizaciju
Projektom će se stoljetna gusterna pretvoriti u inovativan centar vrijedan milijune.
16:29 15 d 19.03.2026
Najveća zemlja na svijetu bez mora gradi novi grad, a u njemu spektakularan neboder
Neboder će biti visok 272 metra, a trebao bi postati gospodarska i administrativna jezgra grada u nastajanju, Alataua.
16:51 16 d 18.03.2026
Usred grada četvrt iz snova: Nigdje auta, a čarobne nadstrešnice i tornjevi oduzimaju dah
Američki arhitektonski studio Pelli Clarke & Partners stvorio je ludu urbanu četvrt inspiriranu bambusom.
16:59 17 d 17.03.2026