O hlađenju treba razmišljati prije prvog toplinskog vala. Danas su dostupne inovacije koje troše manje, filtriraju zrak i prilagođavaju se prostoru.
10:30 3 d 13.04.2026

Stambena zgrada Trnje je u ulici Trnjanski nasip IV. | Foto: Bauštela.hr, Nina Šantek
Koliko nam je ‘kvalitetna’ arhitektura danas dostupna? Ne trebam otići daleko ni pitati puno ljudi da bih mogla reći da većini ljudi – nije. Iako se stanovi ambicioznih projekata prodaju dok kažeš ‘keks’, po cijenama kvadrata jasno je da nisu za sve.
No, u obilasku u okviru Open House festivala ipak sam pronašla pravi mali dragulj u ‘zabačenoj’ starotrnjanskoj ulici Trnjanski nasip IV. Ondje smo obišli Stambenu zgradu Trnje koja me kao dijete kvarta oduševila lokacijom, ali i arhitekturom. Stručni vodič, arhitekt Tomislav Vreš iz ureda Mikelić Vreš Arhitekti (MVA) prisutnima je ispričao puno zanimljivih detalja o objektu koji za tržište dosta pristojnu cijenu i dalje nudi puno.
Nećete povjerovati, ali dok su se na nekim drugim top lokacijama kvadrati još prije nekoliko godina prodavali za 5 ili više tisuća eura, ovdje je početna cijena četvornog metra bila 2.200 do 2.500 eura, a danas se kreće oko 4.000. Ni to nije malo, ali ako kupujete novi stan i tražite nešto vrhunski na dobroj lokaciji, a ne raspolažete s milijunima, možda da se udaljite od centra i Maksimira i okrenete se slojevitom Trnju.
Mjesto susreta bilo je na adresi objekta u spomenutoj ulici, gdje se odmah moglo vidjeti da zgrada dobiva društvo. Kako priča arhitekt, kad se krenula osmišljavati, tu je već bilo novogradnje iz prvog desetljeća 2000-ih, dok je poslije izgradnje ove stambene zgrade investitor nastavio svoj projekt.
– Cijene stanova očito su postale toliko visoke da je investitorima trenutno zanimljivo otkupiti kuće, srušiti ih i napraviti nove zgrade. Mi smo projektirali samo ovu, a iako smo s investitorom ostali u dobrim odnosima, razišli smo se oko nekih stvari. No, da pohvalim investitora koji je uspio otkupiti šest ili sedam – kuća što nije jednostavno i tu će realizirati zamišljene zgrade na zaokružen način, rekao je Vreš.

Stambena zgrada Trnje je u ulici Trnjanski nasip IV. | Foto: Bauštela.hr, Nina Šantek
Podsjetio je da su objekt projektirali od 2019. do 2020., a gradnja je završena u 2021.. Svi stanovi prodani su prije završetka gradnje, pri čemu je zanimljiv detalj da su posljednji prodani stanovi, oni u prizemlju ‘otišli’ posljednji pa su zbog rasta cijena postigli su i najvišu ‘apsolutnu’ vrijednost.
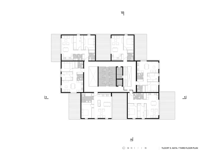
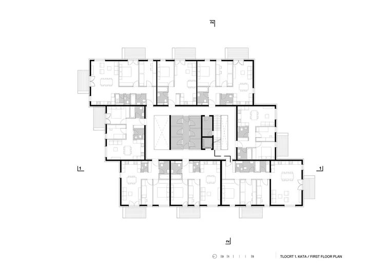
Stambena zgrada s 30 stanova osmišljena je tako da stanarima pruža intimu. Na najvišoj etaži odabrano je rješenje uvučenih terasa koje funkcioniraju kao ‘patio’ da bi se poštivao propis manje izgrađenosti na vrhu objekta. u tom smislu rješenje je često ravnomjerno ‘uvlačenje’ etaže tako da se dobije jedna terasa pa se ne dobiva ista razina privatnosti. Osim pravila zadnjeg kata, projektanti su se morali prilagoditi još nekim ograničenjima.
– Kako su blokovi zadani prema položaju ulice, parcela je bila dosta široka i romboidna. Iz tog razloga je kuća prilično horizontalna i široka. Tako smo zgradu podijelili na ‘trake’ koje se prilagođavaju parceli i stvaraju voluminoznost. Dobili smo i efekt sa zadnjom etažom koja prema prostornom planu mora biti uvučeni kat, odnosno najviše 75 posto donje etaže. Tako što smo ‘urezali’ terase u objekt postigli smo da svih šest stanova na vrhu ima odvojenu terasu, osvrće se arhitekt.

Stambena zgrada Trnje je u ulici Trnjanski nasip IV | Foto: Bauštela.hr, Nina Šantek
Na lokaciji koja je posebna i jer je sa stražnje strane zgrade ovdje starim GUP-om predviđen prostor za izgradnju mosta prema ulici SR Njemačke u Novom Zagrebu, tako da s te strane ništa ne opstruira pogled. S prednje strane je ulica, a bočnih strana su zgrade.
Unatoč tome što je visoka izgrađenost parcele, stanari i dalje mogu uživati u balkonima koji su, pored fasade, najveća specifičnost ovog stambenog objekta. Na fasadi su izvedene ‘kanelure’, a balkone krase rešetkaste i ručno rađene pergole.
– ‘Košare’ za balkone izvedene od in situ izlivenog betona predfabricirane su u jednoj radionici u Istri te su ‘nalegle’ na postojeću konstrukciju. Sa strana je bio pripremljen prethodno fiksiran i savršeno nivelirani profil, ispričao je Vreš ističući da je funkcija dvojaka – s jedne strane, ‘rešetke’ služe kao ograda, no u njima se nalazi i spremnik za klimu i žardinjera koju, kako smo i sami vidjeli, neki stanari koriste, a drugi ne.

Stambena zgrada Trnje je u ulici Trnjanski nasip IV | Foto: Bauštela.hr, Nina Šantek
Sve skupa izvana izgleda kompaktno i skupo – drugačije, a opet nenametljivo. No, arhitekt nas upozorava da se nisu koristili posebno skupi materijali, već se išlo na postizanje posebnog efekta ‘običnim’. S druge strane, ako nešto, poput ručno rađenih pergola i jest bilo skuplje, danas je cifra otišla u nebo pa s jedne strane i ne čudi da se investitor kod novijih zgrada odlučio za jednostavnija rješenja. S druge se ne može zanemariti da se pojeftinjenjem gubi efekt.
Moderna jednostavnost stambenog objekta ističe se u unutrašnjosti koja je bijela i ‘čista’. Tu do izražaja dolaze praktična rješenja koja stanarima olakšavaju svakodnevicu.
Dok arhitekt kao razliku na ostalu novogradnju u Zagrebu ističe da su uspjeli ‘ugurati’ i komunalni prostor u prizemlju te je hodnik generalno takav da poziva na interakciju stanara, osobno su oduševila praktična rješenja. Tako je, primjerice, unutrašnji prsten zgrade korišten za instalacije koje su pak povezane sa spremištima – jer svaki ih kat ima za svoje stanove.

Stambena zgrada Trnje | Foto: Bauštela.hr, Nina Šantek
Veliki je bonus da mašinu ili sušilicu ne morate gurati u stan već ispred stana možete imati i svoj privatni ‘vešeraj’. A stambene kvadrate izdvojiti za štogod drugo.
Za jednosobne, dvosobne i trosobne stanove, kako je zgrada praktički ‘na cesti’, parkirna mjesta su osigurana u garaži u kojoj je, vjerovali ili ne, projektirano i atomsko sklonište. Kaže Vreš, takvi su propisi za ovaj dio grada iako u većem dijelu Zagreba isti zahtjev ne vrijedi.
Na kraju, ne možemo zaboraviti Trnje od kojeg je sve počelo. Svi koji su ove stanove ‘zgrabili’ za manje od 2.500 tisuće eura po četvornom metru prije pet godina, bez sumnje su profitirali. Iako će im susjedstvo uskoro vjerojatno napučiti nove zgrade jer, kako smo doznali u obilasku, za ovaj dio grada nije potrebno donošenje planova nižeg reda, sumnjamo da će stanove prodavati.
Osim što žive u pomno promišljenom prostoru u vrlo ugodnoj zgradi, nezanemariva je blizina Savskog nasipa. A kad se na njega naviknu, teško i će se biti odvojiti od šarma Starog Trnja.
Pridružite se našoj Viber zajednici i prvi saznajte sve informacije.
O hlađenju treba razmišljati prije prvog toplinskog vala. Danas su dostupne inovacije koje troše manje, filtriraju zrak i prilagođavaju se prostoru.
10:30 3 d 13.04.2026
Stare zgrade troše i do 3 puta više energije od novih, a dobra izolacija fasade može prepoloviti račune i za grijanje zimi i za klimu ljeti.
10:30 5 d 11.04.2026
Velik iskorak domaće tvrtke: Postali zastupnici jedne od najnaprednijih tehnologija za rad na visini
Tvrtka Telescopic Peršić postala ekskluzivni zastupnik Magni strojeva za manipulaciju teretom i rad na visini za tržišta Hrvatske i Slovenije.
10:20 7 d 09.04.2026
Ne trebate iskustvo: Za ove radove u kući nije potreban majstor, a dovoljan vam je samo jedan alat
Brtvilo i ljepilo u jednom, elastičan i otporan na temperaturu, a koristiti ga mogu i amateri. Zato se treba naći u kutriji s alatom svakog majstora.
15:00 9 d 07.04.2026
Kuća u Andama kao gledalište na vulkanski krajolik: 300 kvadrata za život u bajci
Jedan od ključnih elemenata projekta jest sustav od deset drvenih konstruktivnih portala koji definiraju volumen kuće.
16:07 2 d 14.04.2026
Trump želi graditi trijumfalni luk, bio bi dio mega kružnog toka i grandiozniji od pariškog
Riječ je o monumentalnoj intervenciji u prostoru koja zahvaća postojeći prometni kružni tok poznat kao Memorial Circle.
16:57 3 d 13.04.2026
Tri vile na 30 tisuća kvadrata: Čisti luksuz u spoju s prirodom na otoku iz snova
Danski arhitektonski studio BIG realizirao je svoj prvi projekt u Japanu, i to u obliku triju vila od nabijene zemlje smještenih na udaljenom otoku
16:31 8 d 08.04.2026
Plitvička jezera dobila laskavu titulu, mamac za turiste: Uvijek spremno čak 15 km drvenih staza
Jedan od važnih elemenata parka su drvene pješačke staze i mostići koji vijugaju iznad jezera, slapova i sedrenih barijera. Iz njih stoji veliki trud.
12:52 11 d 05.04.2026