Lithium SuperPack NG baterija (LSP NG)
Na bateriju LSP NG mogu se spojiti i najzahtjevnija trošila na plovilu poput bočnih potisnika i sidrenog vitla. To otvara nove perspektive primjene.
16:00 4 d 30.03.2026

NFO, Kuća u Novoj Vesi | foto: Nenad Ravnić
Nova Ves nije još samo jedna ulica u Zagrebu. Među najstarijima je, ‘ulica snažnog identiteta i izrazite povijesne slojevitosti, ali istodobno prostor u kojem se rijetko pojavljuju nove arhitekture’, kako su to sročili arhitekti iz studija NFO. Upravo u takav kontekst uklopili su nešto novo i drugačije. Kuća na broju 84a koju su osmislili novitet u ulici koji mijenja njen izgled, ali se na svoj način i uklapa.
– Upravo je to bio izazov, ali i prilika – napraviti kuću koja neće imitirati prošlost, ali će je poštovati, rekli su nam, otkrivši u kratkom pojašnjenju sukus projekta na kojemu su krenuli raditi prije gotovo deset godina, 2017. Iako je riječ o građevini nešto drugačije vanjštine, već na prvi pogled jasno je da je svaki njen detalj oprezno osmišljen kroz godine planiranja, pripreme i prilagodbe projekta.
Prvo i osnovno, nipošto nije riječ o ‘samo još jednom’ projektu koji je narisan, takoreći, na praznoj ploči. Nova kuća osmišljena je u izravnom kontaktu s iznimno vrijednim povijesnim kontekstom, do ljetnikovca biskupa Aleksandra Alagovića – koji predstavlja jedan od najstarijih slojeva Nove Vesi. Ovakva pozicija tražila je od arhitekata da se prema okolini odnose vrlo pažljivo, uz važan preduvjet da nova vizura ne naruši postojeće vizure, a i da ne optereti dodatno ambijent ulice, kako su nam sami rekli. A i na mjestu nove kuće nalazila se stara, oronula kuća.
Zanimljivo je da se planiralo za investitore koji su imali iskustvo gradnje u zaštićenim zonama. Ta ‘podloga’ u danim uvjetima je omogućila ‘strpljiv i otvoren proces u kojemu se projekt razvijao kroz brojne varijante’. Dakle, konačno rješenje javilo se kao rezultat razrade ideje i stalnog dijaloga ne samo s ulagačem već i s konzervatorskim službama. Što se vidi.
– Rezultat je arhitektura koja je jasno suvremena, ali duboko ukorijenjena u specifičnosti mjesta, poručuju idejni tvorci.
Kažu kako je u ranoj fazi izrađen konzervatorski elaborat kojim se analizirala i vrednovala zatečena građevina na parceli. Nastojalo se izučiti ju što je više moguće, te su provedena opsežna istraživanja arhivskih izvoda, uključujući iščitavanje državnih i crkvenih arhiva te katastra, povijesne literature i stručnih analiza. No, unatoč trudu, nije se moglo precizno utvrditi točno vrijeme izgradnje izvorne kuće.
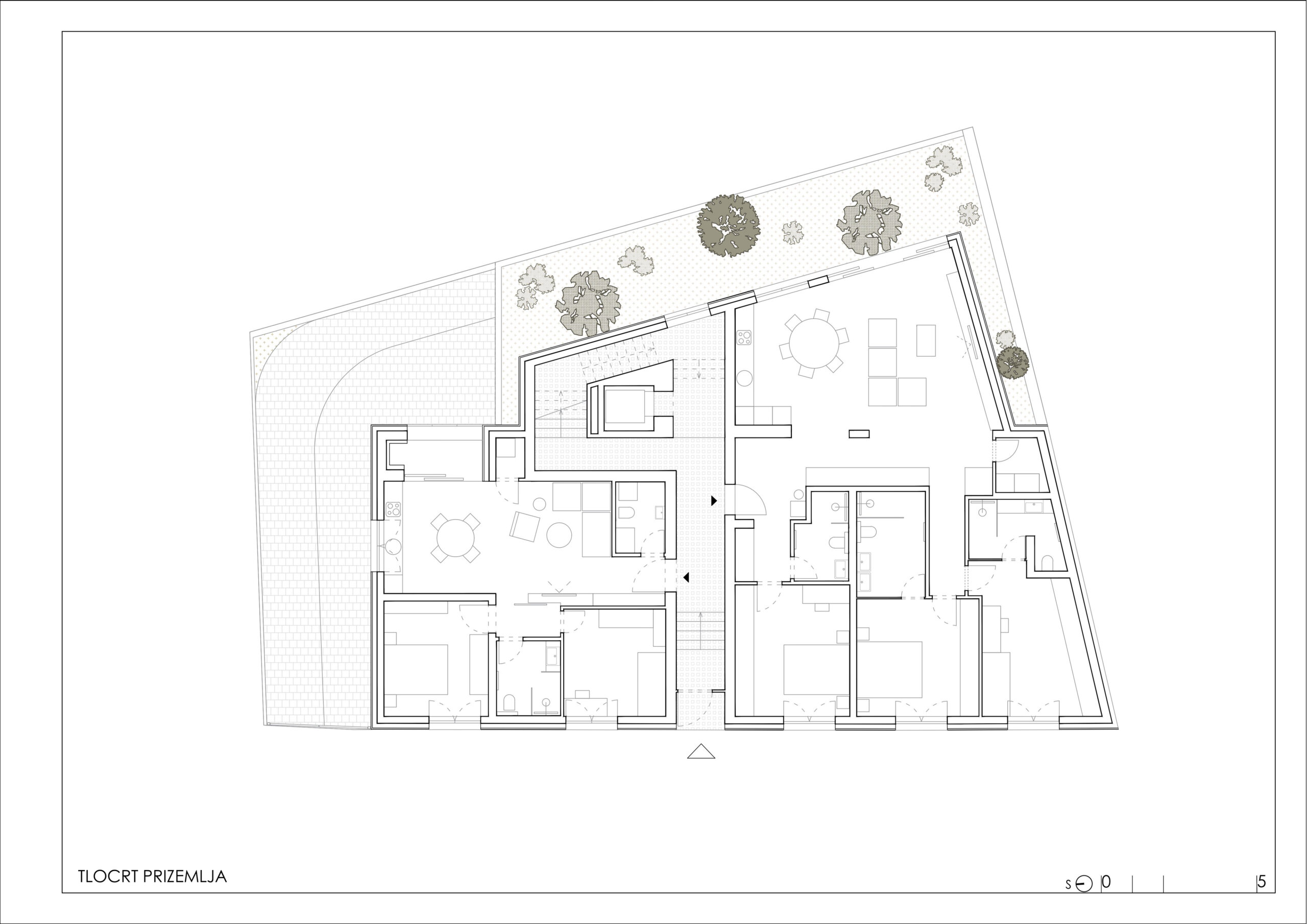
– Bilo je poznato tek da je objekt nastao na nekoć znatno većoj parceli, koja se s vremenom parcelirala u današnji niz manjih čestica, na terenu s blagim padom. Takva konfiguracija terena rezultirala je s tipičnim odnosom visokog prizemlja prema ulici i suterenske etaže prema dvorištu, naveli su arhitekti, dodajući kako se i na katastarskim prikazima iz druge polovice 19. stoljeća jasno iščitava originalni L-oblik tlocrta, govore arhitekti.

Kako je nova kuća zamijenila staru | foto: NFO
U trenutku kad je arhitektonski tim izašao na teren kako bi proučili s kakvom građevinom imaju posla, odnosno što će njihov budući rad zamijeniti – na adresi su zatekli objekt u izrazito derutnom stanju. Vidjelo se da je, kao brojne druge kuće u Zagrebu nastale u sličnom razdoblju, niz godina zapuštena, izložena kiši, snijegu, ledu i sunčevim zrakama koji su učinili svoje.
Arhitekti iz studija NFO prisjećaju se djelomično urušenog krova i unutarnjih komunikacija te ozbiljnih oštećenja nosivih zidova, dijelom zaraštenih. No, statički nesigurnom, staru kuću učinile su i nepromišljene pregradnje u najnižoj etaži.
– U suterenskoj etaži tijekom godina su se provodile nekontrolirane preinake, s brojnim pregrađivanjima i probojima instalacija, što je, u kombinaciji s visokom vlagom, dodatno kompromitiralo stabilnost svodova. Cjelokupna konstrukcija bila je statički upitna već i prije potresa, te u takvom stanju nije pružala realnu osnovu za dugoročno održivu obnovu ili kvalitetnu rekonstrukciju, pojasnili su sugovornici.

Današnji objekt pomno je osmišljen u zadanom kontekstu | foto: Bosnić+Dorotić
Komentiraju kako je sve navedeno prve korake zadatka učinilo je posebno osjetljivim. No, investitori su dakako bili svjesni slojevitosti pothvata u koji su sami bili uključeni, a znali su i što žele. Arhitekti su tako imali relativno odriješene ruke u planiranju, a u sporazumu s investitorima, glavni cilj bio im je realizirati kvalitetno stanovanje, ali i da ulaganje bude isplativo. Unatoč izazovima, projekt se tako ipak razvijao u odnosu uzajamnog povjerenja, vođen ‘višim ciljem’.
– Glavni cilj bio je stvoriti mirnu, dostojanstvenu kuću koja će biti prepoznatljiva, ali nenametljiva.
Kako su nedavno napisali u objavama na društvenim mrežama koje su se ticale kuće u Novoj Vesi 84a, njena vanjština se sastoji od dva glavna dijela – ‘hrđavog’, karakteristično crvenkastog ‘cor-ten’ kata, te sive baze. Takva specifična, a opet nekako ‘tiha’, ne-vrišteća vanjština, zadržat će pogled svakog prolaznika, no stapanje dvaju materijala potpuno drugačijeg efekta izgleda je bio i kontekstualan odabir.
– Vanjština je inspirirana idejom slojevitosti – i povijesne i materijalne. Kontrast između cortena u gornjim zonama i vlaknocementne obloge u bazi stvara jasnu čitljivost suvremenog izraza, ali i referencu na teksture i tonove okolne gradnje stvarajući dojam kontinuiteta iz pješačke perspektive. Njena čvrstoća je na neki način reinterpretacija baza građevina iz tog razdoblja, pojašnjavaju.

NFO, Kuća u Novoj Vesi | foto: Bosnić+Dorotić
Iako će kuća, vanjštinom različita od okolnih građevina, možda izazivati oprečne reakcije – sigurno nikoga neće ostaviti ravnodušnim. A ako će otvoriti jednu raspravu, pretpostavljamo da će biti ona koja se vrti oko pitanja: ‘Kada je ‘opravdano’ staru građevinu zamijeniti novom, a ujedno postići ravnotežu između prošlog i sadašnjeg?’. Iz NFO-a, naravno, imaju mišljenje.
– Zamjena starog objekta novim opravdana je kada postojeća građevina više ne može odgovoriti ni sigurnosno ni prostorno na suvremene potrebe, a pritom ne nosi jasno čitljivu ili očuvanu arhitektonsku vrijednost. U Novoj Vesi ravnotežu smo tražili kroz mjeru: zadržavanje volumena i mjerila ulice, ali oblikovanje kuće suvremenim jezikom. Tradiciju nismo shvaćali kao nešto što treba kopirati, nego kao nešto što treba razumjeti – u proporcijama, odnosima, mirnoći volumena i poštivanju susjedstva, poručili su arhitekti za projekt koji uistinu ostaje rijetko vjeran izvornim proporcijama umjesto da ih debelo premaši, kako to često biva.
U interijeru prevladavaju neutralni, trajni materijali koji stvaraju mirnu i dugotrajnu kulisu za svakodnevni život. Fokus je bio na kvaliteti prostora, svjetlu i odnosu prema dvorištu, prema kojemu su u tlocrtu okrenuti prostori dnevnih boravaka. Uz to, unutrašnjost je kao kontrapunkt izraženijoj fasadi – suzdržana, topla i funkcionalna, kako ju opisuju arhitekti.
A kako oni, koji su u svakom koraku izrade projekta sudjelovali do najsitnijih detalja i poznaju kuću i iznutra i izvana te znaju izazove planiranja i zadovoljstvo nakon završetka realizacije – danas gledaju na svojih umova i ruku djelo? Ovaj projekt bio je višegodišnji, budući da su se prve ideje pojavile još 2017. godine, nakon čega je projekt prolazio kroz više faza i iteracija, a na samom kraju je uslijedilo ishođenje dozvola pa i sama gradnja.

NFO, Kuća u Novoj Vesi | foto: Bosnić+Dorotić
Pored kućnog broja 84a u staroj zagrebačkoj ulici, kažu, danas rado prođu.
– Povremeno prolazimo lokacijom i uvijek nas veseli vidjeti kuću kao dio svakodnevnog života ulice-nenametljivo prisutnu, ali jasno svoju, zaključno su dodali.
Kao obični promatrači i sami tvrdimo da svakako vrijedi proći pored ove posebne lokacije i zaustaviti se, da biste udahnuli i osjetili slojevitost spokoja i duge povijesti ulice te ovog, novijeg ‘dodatka’, jednoga od rijetkih izgrađenih u posljednja tri, četiri desetljeća u Novoj Vesi. Ali nipošto posljednjeg.
Lithium SuperPack NG baterija (LSP NG)
Na bateriju LSP NG mogu se spojiti i najzahtjevnija trošila na plovilu poput bočnih potisnika i sidrenog vitla. To otvara nove perspektive primjene.
16:00 4 d 30.03.2026
Projekt predsjedničke knjižnice Donalda Trumpa koji izlazi iz okvira dobio je zeleno svjetlo, ali i rok od pet godina da bude izveden.
15:53 3 d 31.03.2026
U srcu bolnice Agnes nalazi se snažna integracija naprednih digitalnih tehnologija koja brine o svemu.
16:43 4 d 30.03.2026
Zgrada se nalazi u Brooklynu, na poznatom raskrižju koje predstavlja raskorak između industrijskog i stambenog djela grada.
16:24 11 d 23.03.2026
Mađari se istaknuli drugačijom vizijom: Evo kako je Kaštelanski most mogao izgledati, ali neće
Kao najbolje tehničko-oblikovno rješenje za Kaštelanski most, odabrano je ono 3LHD-a i Projektni Inženirji. A zbog ove stvari su se izdvojili Mađari.
10:02 13 d 21.03.2026
Jedinstven projekt na našem otoku: Nagradila ga je i Europska unija, a sada kreće u realizaciju
Projektom će se stoljetna gusterna pretvoriti u inovativan centar vrijedan milijune.
16:29 15 d 19.03.2026
Najveća zemlja na svijetu bez mora gradi novi grad, a u njemu spektakularan neboder
Neboder će biti visok 272 metra, a trebao bi postati gospodarska i administrativna jezgra grada u nastajanju, Alataua.
16:51 16 d 18.03.2026
Usred grada četvrt iz snova: Nigdje auta, a čarobne nadstrešnice i tornjevi oduzimaju dah
Američki arhitektonski studio Pelli Clarke & Partners stvorio je ludu urbanu četvrt inspiriranu bambusom.
16:59 17 d 17.03.2026